Connect

Find us on...

Dashboard

Marjorie Dick Stuart

  • Cell 240-731-8079
Questions?

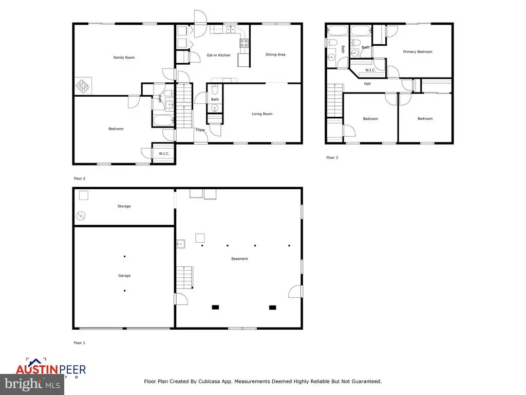
207 Rhododendron Dr, HEDGESVILLE, WV – $449,900

  • 4 Beds
  • Baths
  • 2,448 Sqft
  • 5.21 Acres
  • 4 Beds
  • Baths
  • 2,448 Sqft
  • 5.21 Acres

207 Rhododendron Dr

Welcome to your private retreat in Hedgesville, WV! Nestled on a wooded lot with its very own approx. 1-acre pond, this spacious two-story home blends peaceful country living with modern comfort. Inside, you’ll find a bright and inviting living room, a formal dining space with hardwood floors, and a functional kitchen ready for your favorite recipes. Multiple bedrooms, including a generous primary suite, provide plenty of space, while additional living areas offer flexibility for home office, recreation, or guest use. Step outside to enjoy everything this property has to offer. A large multi-level deck overlooks the above-ground pool—perfect for entertaining or relaxing on warm summer days. Multiple balconies and sitting areas create ideal spots to take in the serene wooded surroundings. And just beyond, the pond offers fishing, wildlife watching, and year-round natural beauty right in your backyard. Additional features include an oversized two-car garage, a detached storage shed, and a long driveway with ample parking. Mature trees and landscaping provide shade and privacy, while the home’s location keeps you close to Berkeley Springs, Martinsburg, and commuter routes. This property is being sold as-is, offering an excellent opportunity for buyers to customize it to their vision. With a pool, pond, and peaceful setting, it’s a rare find in Hedgesville. Schedule your showing today!Buyer to do due diligence regarding all measurements, square footage, and property details. Sale is contingent upon seller securing a home of choice.

Essential Information

  • MLS® #WVBE2043510
  • Price$449,900
  • Bedrooms4
  • Bathrooms3.50
  • Full Baths3
  • Half Baths1
  • Square Footage2,448
  • Acres5.21
  • Year Built1995
  • TypeResidential
  • Sub-TypeDetached
  • StyleColonial
  • StatusActive

Community Information

  • Address207 Rhododendron Dr
  • SubdivisionCOUNTRY ACRES
  • CityHEDGESVILLE
  • CountyBERKELEY-WV
  • StateWV
  • MunicipalityTown Of Hedgesville
  • Zip Code25427

Amenities

  • # of Garages2
  • ViewPond, Trees/Woods
  • Is WaterfrontYes
  • Waterfront50000714183
  • Has PoolYes
  • PoolAbove Ground

Amenities

Primary Bath(s), Stove - Wood, Entry Level Bedroom

Utilities

Cable TV Available, Electric Available

Garages

Garage - Front Entry, Built In, Basement Garage, Garage Door Opener, Inside Access

Interior

  • Interior FeaturesFloor Plan - Traditional
  • HeatingHeat Pump(s)
  • CoolingCentral A/C
  • Has BasementYes
  • Stories3

Appliances

Dishwasher, Dryer, Refrigerator, Stove, Washer, Water Heater

Basement

Full, Garage Access, Interior Access, Outside Entrance

Exterior

  • ExteriorBrick Veneer, Vinyl Siding
  • Exterior FeaturesAbove Ground
  • RoofArchitectural Shingle
  • ConstructionBrick Veneer, Vinyl Siding
  • FoundationPermanent

School Information

  • DistrictBERKELEY COUNTY SCHOOLS

Additional Information

  • Date ListedAugust 21st, 2025
  • Days on Market84
  • Zoning101

Listing Details

  • OfficeBurch Real Estate Group, LLC
  • Office Contact(681) 252-3002
Please provide a valid email address.

Price Change History for 207 Rhododendron Dr, HEDGESVILLE, WV (MLS® #WVBE2043510)

Date Details Price Change
Price Reduced (from $459,900) $449,900 $10,000 (2.17%)

© 2020 BRIGHT, All Rights Reserved. Information deemed reliable but not guaranteed. The data relating to real estate for sale on this website appears in part through the BRIGHT Internet Data Exchange program, a voluntary cooperative exchange of property listing data between licensed real estate brokerage firms in which Coldwell Banker Residential Realty participates, and is provided by BRIGHT through a licensing agreement. Real estate listings held by brokerage firms other than Coldwell Banker Residential Realty are marked with the IDX logo and detailed information about each listing includes the name of the listing broker.The information provided by this website is for the personal, non-commercial use of consumers and may not be used for any purpose other than to identify prospective properties consumers may be interested in purchasing. Some properties which appear for sale on this website may no longer be available because they are under contract, have Closed or are no longer being offered for sale. Some real estate firms do not participate in IDX and their listings do not appear on this website. Some properties listed with participating firms do not appear on this website at the request of the seller.

Listing information last updated on November 16th, 2025 at 5:58pm CST.