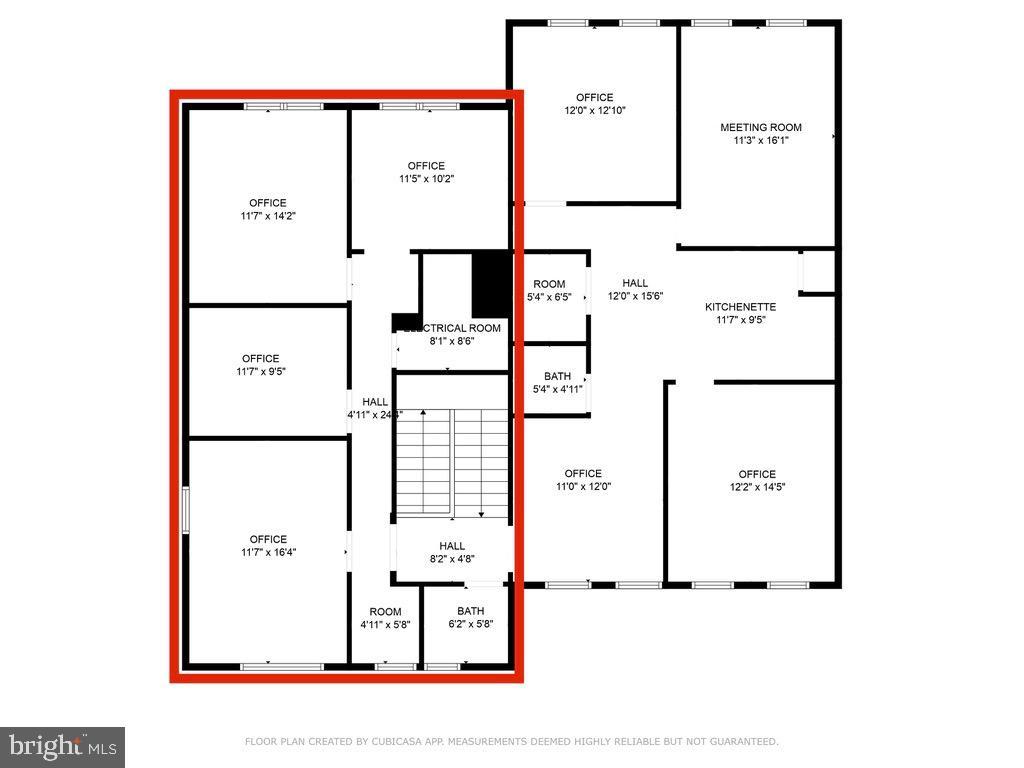
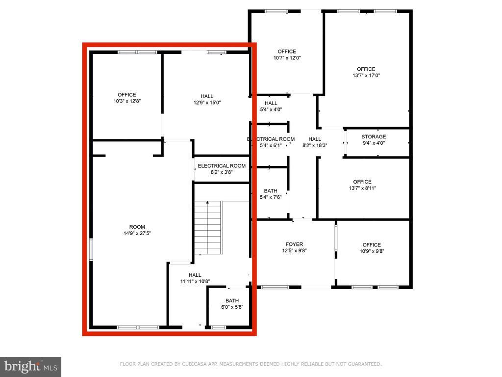
Beautifully maintained adjoining two-level office townhomes located in the sought-after Democracy Square Business Center in the heart of Fairfax City. These professional office suites — 10343 and 10345 Democracy Lane — are being sold simultaneously, offering a unique opportunity for an owner-occupant, investor, or expanding business seeking connected spaces with flexibility for multi-department use or shared operations. Featuring multiple private offices, spacious conference or meeting rooms, and open work areas ideal for collaboration or client meetings. The layout offers a professional and efficient flow with restrooms on each level, an electrical room, and ample natural light throughout. The main level includes a large open workroom and adjacent offices, perfect for reception, client consultations, or team workspace. Upstairs, enjoy a combination of private offices and flexible spaces suited for executive use or focused work. Situated within a well-established office community just minutes from Fairfax City Hall, GMU, Route 50, Route 123, and I-66, this property offers convenience, visibility, and functionality for a growing business.
 © 2020 BRIGHT, All Rights Reserved. Information deemed reliable but not guaranteed. The data relating to real estate for sale on this website appears in part through the BRIGHT Internet Data Exchange program, a voluntary cooperative exchange of property listing data between licensed real estate brokerage firms in which Coldwell Banker Residential Realty participates, and is provided by BRIGHT through a licensing agreement. Real estate listings held by brokerage firms other than Coldwell Banker Residential Realty are marked with the IDX logo and detailed information about each listing includes the name of the listing broker.The information provided by this website is for the personal, non-commercial use of consumers and may not be used for any purpose other than to identify prospective properties consumers may be interested in purchasing. Some properties which appear for sale on this website may no longer be available because they are under contract, have Closed or are no longer being offered for sale. Some real estate firms do not participate in IDX and their listings do not appear on this website. Some properties listed with participating firms do not appear on this website at the request of the seller.
© 2020 BRIGHT, All Rights Reserved. Information deemed reliable but not guaranteed. The data relating to real estate for sale on this website appears in part through the BRIGHT Internet Data Exchange program, a voluntary cooperative exchange of property listing data between licensed real estate brokerage firms in which Coldwell Banker Residential Realty participates, and is provided by BRIGHT through a licensing agreement. Real estate listings held by brokerage firms other than Coldwell Banker Residential Realty are marked with the IDX logo and detailed information about each listing includes the name of the listing broker.The information provided by this website is for the personal, non-commercial use of consumers and may not be used for any purpose other than to identify prospective properties consumers may be interested in purchasing. Some properties which appear for sale on this website may no longer be available because they are under contract, have Closed or are no longer being offered for sale. Some real estate firms do not participate in IDX and their listings do not appear on this website. Some properties listed with participating firms do not appear on this website at the request of the seller.
Listing information last updated on October 31st, 2025 at 7:45am CDT.