Connect

Find us on...

Dashboard

Marjorie Dick Stuart

  • Cell 240-731-8079
Questions?

1617 Sunken Rd, FREDERICKSBURG, VA – $599,900

  • 3 Beds
  • 2 Baths
  • 2,205 Sqft
  • .29 Acres
  • 3 Beds
  • 2 Baths
  • 2,205 Sqft
  • .29 Acres

1617 Sunken Rd

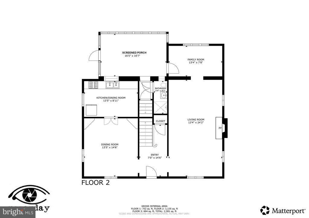
This wonderful brick Cape Cod located below the college is set on a beautiful lot filled with possibilities and room to grow. The beautiful hardwood flooring in the Foyer is carried through much of the home, as are classic built-ins including bookcases in the formal Living Room plus two corner cabinets in the formal Dining Room. The Living Room has a gas log fireplace with mantel and opens to a cozy enclosed porch that evokes a quintessential European "snug" vibe. The Kitchen has been updated with quartz countertops atop the vintage wood cabinetry. Plus there is a wonderful screened porch with access both from the enclosed porch and back door at the Kitchen. A first floor full bath has a walk-in shower. Upstairs, the landing and three nicely-sized bedrooms have a good amount of storage for an older home. The Primary Bedroom has access to the upper level tiled full bath that was updated in 2022. The main level formal areas have plantation shutters on the lower window sashes. The basement has been improved with a Recreation Area with faux fireplace with mantel. The utility area has gas furnace which replaced the oil furnace a few years ago, plus water heater and washer/dryer closet. Upstairs, there is a heat pump for cooling in warmer months. The main level has a electric mini-split in the enclosed porch off the Living Room that also helps keep the main level cool in the warm months. The unused oil tank was removed by Pollard Environmental in 2025; see Documents. New gutters were installed in 2025, as well. There is both off-street and on-street parking plus a spacious backyard with two smaller sheds for additional storage, both being sold "as-is." All appliances are functional and being sold "as-is." So much charm and so many possibilities, all in one fabulous home within walking distance to the university and all of the downtown amenities. See this one soon!

Essential Information

  • MLS® #VAFB2009022
  • Price$599,900
  • Bedrooms3
  • Bathrooms2.00
  • Full Baths2
  • Square Footage2,205
  • Acres0.29
  • Year Built1949
  • TypeResidential
  • Sub-TypeDetached
  • StyleCape Cod
  • StatusActive Under Contract

Community Information

  • Address1617 Sunken Rd
  • SubdivisionBELOW THE COLLEGE
  • CityFREDERICKSBURG
  • CountyFREDERICKSBURG CITY-VA
  • StateVA
  • Zip Code22401

Amenities

Amenities

Tub Shower, Stall Shower, Carpet, CeilngFan(s), Chair Railing, Crown Molding, Formal/Separate Dining Room, Shades/Blinds, Wood Floors

Interior

  • Interior FeaturesFloor Plan-Traditional
  • HeatingRadiator
  • Has BasementYes
  • FireplaceYes
  • # of Fireplaces1
  • FireplacesGas/Propane
  • # of Stories2
  • Stories2 Story

Appliances

Dryer, Oven/Range-Electric, Refrigerator, Dishwasher, Water Heater

Cooling

Ceiling Fan(s), Ductless/Mini-Split, Heat Pump(s)

Basement

Connecting Stairway, Partially Finished

Exterior

  • ExteriorBrick and Siding, Vinyl Siding
  • Lot DescriptionLevel
  • WindowsWood Frame
  • RoofSlate, Shingle
  • FoundationBlock

School Information

  • ElementaryHUGH MERCER
  • MiddleWALKER-GRANT
  • HighJAMES MONROE

District

FREDERICKSBURG CITY PUBLIC SCHOOLS

Additional Information

  • Date ListedOctober 5th, 2025
  • Days on Market6
  • ZoningR4

Listing Details

  • Office Contact5403715220

Office

Long & Foster Real Estate, Inc.

Please provide a valid email address.

Price Change History for 1617 Sunken Rd, FREDERICKSBURG, VA (MLS® #VAFB2009022)

Date Details Price Change
Active Under Contract
Active (from Coming Soon)

© 2020 BRIGHT, All Rights Reserved. Information deemed reliable but not guaranteed. The data relating to real estate for sale on this website appears in part through the BRIGHT Internet Data Exchange program, a voluntary cooperative exchange of property listing data between licensed real estate brokerage firms in which Coldwell Banker Residential Realty participates, and is provided by BRIGHT through a licensing agreement. Real estate listings held by brokerage firms other than Coldwell Banker Residential Realty are marked with the IDX logo and detailed information about each listing includes the name of the listing broker.The information provided by this website is for the personal, non-commercial use of consumers and may not be used for any purpose other than to identify prospective properties consumers may be interested in purchasing. Some properties which appear for sale on this website may no longer be available because they are under contract, have Closed or are no longer being offered for sale. Some real estate firms do not participate in IDX and their listings do not appear on this website. Some properties listed with participating firms do not appear on this website at the request of the seller.

Listing information last updated on November 6th, 2025 at 10:30pm CST.