Connect

Find us on...

Dashboard

Marjorie Dick Stuart

  • Cell 240-731-8079
Questions?

Lot 838 Castaway, GREENBACKVILLE, VA – $274,900

  • 3 Beds
  • 2 Baths
  • 1,210 Sqft
  • .22 Acres
  • 3 Beds
  • 2 Baths
  • 1,210 Sqft
  • .22 Acres

Lot 838 Castaway

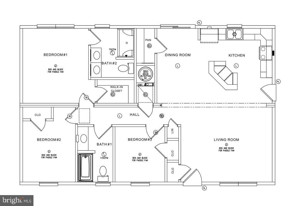
If you are looking for a ranch style home with a functional layout the Rolling Brook is perfect for you. This beautiful home offers all the necessities you could require in a new home. There is no wasted space in this simple, yet substantial design. Complete with three bedrooms and two full bathrooms. The kitchen, with an island for extra seating and prep space, is open to the spacious living room and adjacent dining room. Perfect for entertaining. This home is customizable. Additional upgrades are available! This home is located in Captain's Cove and features indoor and outdoor pools, restaurant, banquette rooms, fitness center, and so much more! This is the base price. The home is to be built and the photos of the model home may include options. Taxes are based on the land only.

Essential Information

  • MLS® #VAAC2001582
  • Price$274,900
  • Bedrooms3
  • Bathrooms2.00
  • Full Baths2
  • Square Footage1,210
  • Acres0.22
  • Year Built2025
  • TypeResidential
  • Sub-TypeDetached
  • StyleRancher
  • StatusActive

Community Information

  • AddressLot 838 Castaway
  • SubdivisionCAPTAIN'S COVE
  • CityGREENBACKVILLE
  • CountyACCOMACK-VA
  • StateVA
  • Zip Code23356

Amenities

  • ParkingStone
  • Has PoolYes

Amenities

Carpet, Entry Lvl BR, Master Bath(s), Tub Shower, Upgraded Countertops, Walk-in Closet(s), Stall Shower, Pantry

Utilities

Cable TV Available, Phone Available, Electric Available

Interior

  • Interior FeaturesFloor Plan-Open
  • HeatingHeat Pump(s)
  • CoolingCentral A/C
  • # of Stories1
  • Stories1 Story

Appliances

Dishwasher, Microwave, Stove, Refrigerator

Exterior

  • ExteriorVinyl Siding
  • Lot DescriptionTrees/Wooded
  • WindowsDouble Hung
  • RoofArchitectural Shingle
  • FoundationCrawl Space

School Information

  • DistrictACCOMACK COUNTY PUBLIC SCHOOLS
  • ElementaryKEGOTANK
  • MiddleARCADIA
  • HighARCADIA

Additional Information

  • Date ListedJanuary 21st, 2025
  • Days on Market293
  • ZoningRESIDENTIAL

Listing Details

  • Office Contact(443) 746-2090

Office

Monument Sotheby's International Realty

Please provide a valid email address.

© 2020 BRIGHT, All Rights Reserved. Information deemed reliable but not guaranteed. The data relating to real estate for sale on this website appears in part through the BRIGHT Internet Data Exchange program, a voluntary cooperative exchange of property listing data between licensed real estate brokerage firms in which Coldwell Banker Residential Realty participates, and is provided by BRIGHT through a licensing agreement. Real estate listings held by brokerage firms other than Coldwell Banker Residential Realty are marked with the IDX logo and detailed information about each listing includes the name of the listing broker.The information provided by this website is for the personal, non-commercial use of consumers and may not be used for any purpose other than to identify prospective properties consumers may be interested in purchasing. Some properties which appear for sale on this website may no longer be available because they are under contract, have Closed or are no longer being offered for sale. Some real estate firms do not participate in IDX and their listings do not appear on this website. Some properties listed with participating firms do not appear on this website at the request of the seller.

Listing information last updated on November 11th, 2025 at 1:16pm CST.