Connect

Find us on...

Dashboard

Marjorie Dick Stuart

  • Cell 240-731-8079
Questions?

3411 W Lippincott St, PHILADELPHIA, PA – $539,990

  • 3 Beds
  • Baths
  • .02 Acres
  • 193 DOM
  • 3 Beds
  • Baths
  • .02 Acres
  • 193 DOM

3411 W Lippincott St

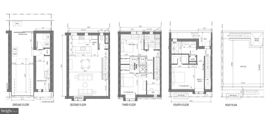
Introducing West Alley Row - 6 design-forward, modern and sleek townhomes with private TWO CAR garages and roof decks. Every home comes with the FULL 10 year TAX ABATEMENT and 1 year builder warranty, giving you incredible peace of mind. Step inside and discover over 2,000 SF of modern living on a 20’ wide floor plan with 3 bedrooms and 3.5 baths layouts spread across four living levels. Each home features a large thoughtfully designed kitchen with stainless steel appliances, an inviting living space made for entertaining, oversized windows throughout that flood the space with natural light, and warm engineered wood floors underfoot. All details were considered including, recessed LED lighting throughout, high efficiency HVAC and hot water + a full washer/dryer set up. Located in the desirable Paradise Neighborhood, bordering the Schuylkill River and adjacent to Fairmount Park, West Alley Row offers a unique blend of city convenience and natural beauty. Enjoy over 2,000 acres of rolling hills, trails, waterfront, and woodlands right at your doorstep, providing a refuge from the city. Walk to East Falls to enjoy dinner and drinks riverside at In Riva, meet up with neighbors at Thundermug Cafe, or take in a performance by the local community theatre Old Academy Players. You can even walk to the East Falls train station for a speedy 24 minute commute to Center City. Bustling Manayunk is a quick drive or bike ride away, and highway access is a breeze with nearby on-ramps to Route 1, I-76, the Pennsylvania Turnpike, and I-95. Cyclists, joggers, and dog walkers will appreciate the convenient access to Kelly and MLK Drives and nearby trails. Whether you're looking for a vibrant community, easy commutes or a serene space to recharge, West Alley Row offers it all. Come find your perfect place to call home!

Essential Information

  • MLS® #PAPH2475696
  • Price$539,990
  • Bedrooms3
  • Bathrooms3.50
  • Full Baths3
  • Half Baths1
  • Acres0.02
  • Year Built2025
  • TypeResidential
  • Sub-TypeEnd of Row/Townhouse
  • StyleTraditional
  • StatusActive

Community Information

  • Address3411 W Lippincott St
  • Area19132
  • SubdivisionEAST FALLS
  • CityPHILADELPHIA
  • CountyPHILADELPHIA-PA
  • StatePA
  • MunicipalityPHILADELPHIA
  • Zip Code19132

Amenities

  • # of Garages2
  • GaragesGarage - Front Entry

Interior

  • HeatingCentral
  • CoolingCentral A/C
  • Stories4

Exterior

  • ConstructionMasonry
  • FoundationSlab

School Information

  • DistrictPHILADELPHIA CITY

Additional Information

  • Date ListedMay 19th, 2025
  • Days on Market193
  • ZoningICMX

Listing Details

  • OfficeElfant Wissahickon Realtors
  • Office Contact(215) 866-0050
Please provide a valid email address.

Price Change History for 3411 W Lippincott St, PHILADELPHIA, PA (MLS® #PAPH2475696)

Date Details Price Change
Price Reduced (from $590,000) $539,990 $50,010 (8.48%)

© 2020 BRIGHT, All Rights Reserved. Information deemed reliable but not guaranteed. The data relating to real estate for sale on this website appears in part through the BRIGHT Internet Data Exchange program, a voluntary cooperative exchange of property listing data between licensed real estate brokerage firms in which Coldwell Banker Residential Realty participates, and is provided by BRIGHT through a licensing agreement. Real estate listings held by brokerage firms other than Coldwell Banker Residential Realty are marked with the IDX logo and detailed information about each listing includes the name of the listing broker.The information provided by this website is for the personal, non-commercial use of consumers and may not be used for any purpose other than to identify prospective properties consumers may be interested in purchasing. Some properties which appear for sale on this website may no longer be available because they are under contract, have Closed or are no longer being offered for sale. Some real estate firms do not participate in IDX and their listings do not appear on this website. Some properties listed with participating firms do not appear on this website at the request of the seller.

Listing information last updated on November 27th, 2025 at 12:00pm CST.