Connect

Find us on...

Dashboard

Marjorie Dick Stuart

  • Cell 240-731-8079
Questions?

1433 Ogden St, PHILADELPHIA, PA – $980,000

  • $980k Price
  • 3,020 Sqft
  • .02 Acres
  • 225 DOM
  • $980k Price
  • 3,020 Sqft
  • .02 Acres
  • 225 DOM

1433 Ogden St

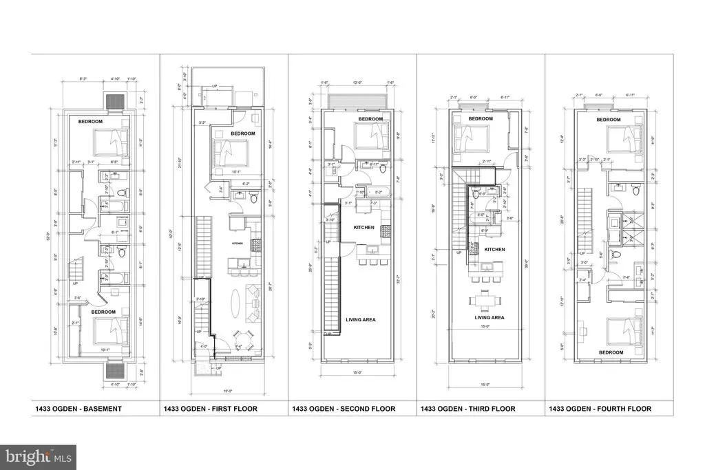
Price just reduced! Seller is motivated and open to reasonable offers. Modern triplex in the heart of Fairmount featuring three spacious, well-maintained units with solid wide birch hardwood floors, contemporary finishes, and private outdoor spaces. Unit 1: 3 bed, 3 bath duplex with a private backyard. Currently leased at $2,300/month through 7/31/25, with great long-term tenants planning to renew. Unit 2: 1 bed, 1 bath with a small balcony and a reliable tenant since 2019. Leased at $1,300/month through 8/31/2025 — potential for rent increase or turnover. Unit 3: 3 bed, 3 bath including an en-suite primary bedroom and a private roof deck with stunning skyline views. Leased at $2,800/month through 7/31/25. Each unit includes a full kitchen with modern quartz countertops and stainless steel appliances. You can increase the cash flow dramatically if you are certified to take housing vouchers. Prime location near museums, restaurants, parks, and public transportation.

Essential Information

  • MLS® #PAPH2467232
  • Price$980,000
  • Bathrooms0.00
  • Square Footage3,020
  • Acres0.02
  • Year Built2018
  • TypeMulti-Family
  • Sub-TypeTriplex,Interior Row/Townhouse
  • StyleContemporary
  • StatusActive

Community Information

  • Address1433 Ogden St
  • Area19130
  • SubdivisionFRANCISVILLE
  • CityPHILADELPHIA
  • CountyPHILADELPHIA-PA
  • StatePA
  • MunicipalityPHILADELPHIA
  • Zip Code19130

Amenities

  • ViewCity

Interior

  • HeatingCentral
  • CoolingCentral A/C
  • Has BasementYes
  • BasementFully Finished

Appliances

Dishwasher, Disposal, Exhaust Fan, Refrigerator, Washer/Dryer Stacked

Exterior

  • ExteriorMasonry
  • Exterior FeaturesRoof Deck,Balcony
  • ConstructionMasonry
  • FoundationConcrete Perimeter

School Information

  • DistrictPHILADELPHIA CITY

Additional Information

  • Date ListedApril 11th, 2025
  • Days on Market225
  • ZoningRM1

Listing Details

  • OfficeHome Vista Realty
  • Office Contact(215) 980-8881
Please provide a valid email address.

Price Change History for 1433 Ogden St, PHILADELPHIA, PA (MLS® #PAPH2467232)

Date Details Price Change
Price Reduced (from $1,029,000) $980,000 $49,000 (4.76%)

© 2020 BRIGHT, All Rights Reserved. Information deemed reliable but not guaranteed. The data relating to real estate for sale on this website appears in part through the BRIGHT Internet Data Exchange program, a voluntary cooperative exchange of property listing data between licensed real estate brokerage firms in which Coldwell Banker Residential Realty participates, and is provided by BRIGHT through a licensing agreement. Real estate listings held by brokerage firms other than Coldwell Banker Residential Realty are marked with the IDX logo and detailed information about each listing includes the name of the listing broker.The information provided by this website is for the personal, non-commercial use of consumers and may not be used for any purpose other than to identify prospective properties consumers may be interested in purchasing. Some properties which appear for sale on this website may no longer be available because they are under contract, have Closed or are no longer being offered for sale. Some real estate firms do not participate in IDX and their listings do not appear on this website. Some properties listed with participating firms do not appear on this website at the request of the seller.

Listing information last updated on November 21st, 2025 at 7:30am CST.