Connect

Find us on...

Dashboard

Marjorie Dick Stuart

  • Cell 240-731-8079
Questions?

5212 Beaumont Ave, PHILADELPHIA, PA – $90,000

  • $90k Price
  • .02 Acres
  • 419 DOM
  • $90k Price
  • .02 Acres
  • 419 DOM

5212 Beaumont Ave

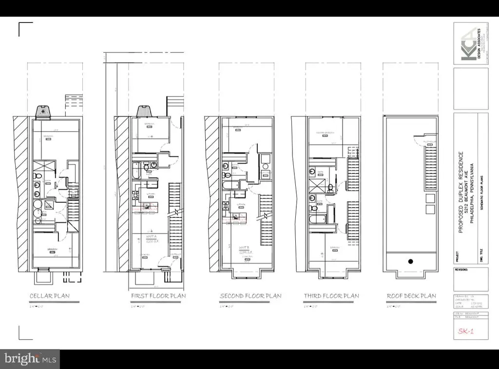
This project offers an investor an incredible opportunity ! The land is complete with Geo Tech, PWD plan, and Approved Building Permit ! Also Tax Abatement has been submitted! Zoned for a (3) Story (2) unit residential building with a roof deck, not far from active regional Train station and several local transportation hubs. This land is being sold AS IS WHERE IS. Don't miss this opportunity It won't last long . Drive by and submit your offer today !

Essential Information

  • MLS® #PAPH2398880
  • Price$90,000
  • Bathrooms0.00
  • Acres0.02
  • TypeLand
  • Sub-TypeLand
  • StatusActive

Community Information

  • Address5212 Beaumont Ave
  • Area19143
  • SubdivisionUNIVERSITY CITY
  • CityPHILADELPHIA
  • CountyPHILADELPHIA-PA
  • StatePA
  • MunicipalityPHILADELPHIA
  • Zip Code19143

School Information

District

THE SCHOOL DISTRICT OF PHILADELPHIA

Additional Information

  • Date ListedSeptember 19th, 2024
  • Days on Market419
  • ZoningRM1

Listing Details

  • OfficeOpulent Realty Group LLC
  • Office Contact6102063955
Please provide a valid email address.

© 2020 BRIGHT, All Rights Reserved. Information deemed reliable but not guaranteed. The data relating to real estate for sale on this website appears in part through the BRIGHT Internet Data Exchange program, a voluntary cooperative exchange of property listing data between licensed real estate brokerage firms in which Coldwell Banker Residential Realty participates, and is provided by BRIGHT through a licensing agreement. Real estate listings held by brokerage firms other than Coldwell Banker Residential Realty are marked with the IDX logo and detailed information about each listing includes the name of the listing broker.The information provided by this website is for the personal, non-commercial use of consumers and may not be used for any purpose other than to identify prospective properties consumers may be interested in purchasing. Some properties which appear for sale on this website may no longer be available because they are under contract, have Closed or are no longer being offered for sale. Some real estate firms do not participate in IDX and their listings do not appear on this website. Some properties listed with participating firms do not appear on this website at the request of the seller.

Listing information last updated on November 17th, 2025 at 9:16pm CST.