Connect

Find us on...

Dashboard

Marjorie Dick Stuart

  • Cell 240-731-8079
Questions?

2123 N Broad St, PHILADELPHIA, PA – $899,999

  • $900k Price
  • .07 Acres
  • 465 DOM
  • $900k Price
  • .07 Acres
  • 465 DOM

2123 N Broad St

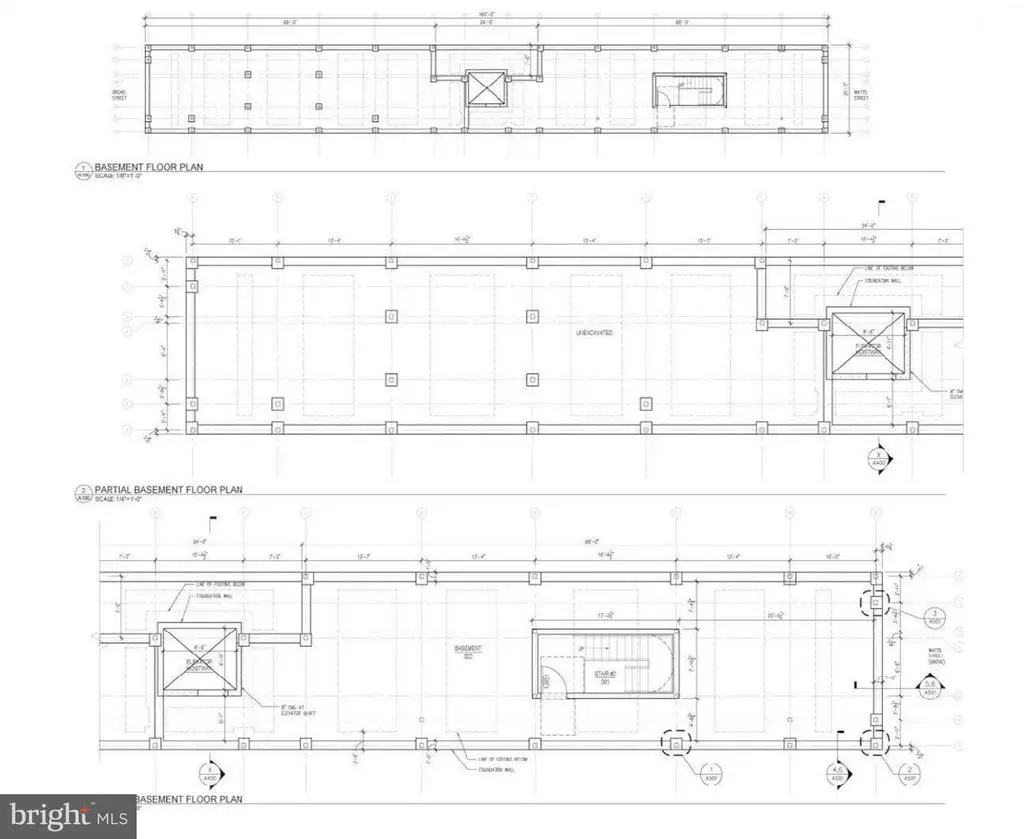
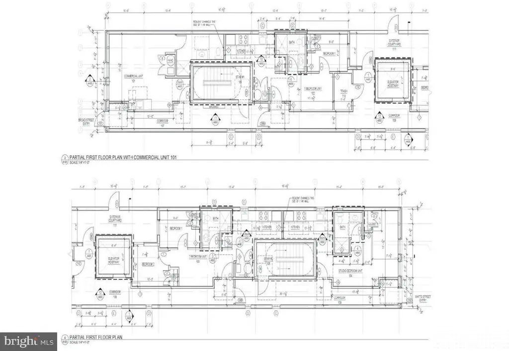
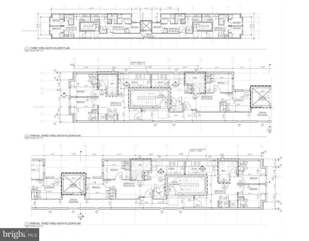
Introducing 2123 NORTH BROAD — a prime QOZ (Opportunity Zone) multifamily development parcel in the North Broad District / Temple University submarket of Philadelphia, Pennsylvania. With 22 units (44 beds) in a proposed 19,200 SF structure, this asset will command perennial rental demand for generations to come, backed by the power of Philadelphia's largest university by enrollment. Temple University benefits from its central location, transit-rich environment, high-profile NCAA programs, and its ever-growing academic campus. 700 SF of commercial space activates the vibrant streetscape and proposed building. Offered at an attractive land basis, 2123 NORTH BROAD ST presents a sound development/investment thesis on a leading national higher-education campus backed by strong rental fundamentals. 10-year tax abatement eligible — pay taxes on the assessed land value for 10 years, rather than the assessed value of the future improved structure. Buyer responsible for verifying taxes, entitlements, lot dimensions + SF in DD. Renderings for illustrative purposes.

Essential Information

  • MLS® #PAPH2383966
  • Price$899,999
  • Bathrooms0.00
  • Acres0.07
  • TypeLand
  • Sub-TypeLand
  • StatusActive

Community Information

  • Address2123 N Broad St
  • Area19122
  • CityPHILADELPHIA
  • CountyPHILADELPHIA-PA
  • StatePA
  • MunicipalityPHILADELPHIA
  • Zip Code19122

Amenities

  • ViewCity

School Information

District

THE SCHOOL DISTRICT OF PHILADELPHIA

Additional Information

  • Date ListedAugust 8th, 2024
  • Days on Market465
  • ZoningCMX25

Listing Details

  • OfficeKeller Williams Liberty Place
  • Office Contact6093995454
Please provide a valid email address.

Price Change History for 2123 N Broad St, PHILADELPHIA, PA (MLS® #PAPH2383966)

Date Details Price Change
Price Reduced (from $949,999) $899,999 $50,000 (5.26%)

© 2020 BRIGHT, All Rights Reserved. Information deemed reliable but not guaranteed. The data relating to real estate for sale on this website appears in part through the BRIGHT Internet Data Exchange program, a voluntary cooperative exchange of property listing data between licensed real estate brokerage firms in which Coldwell Banker Residential Realty participates, and is provided by BRIGHT through a licensing agreement. Real estate listings held by brokerage firms other than Coldwell Banker Residential Realty are marked with the IDX logo and detailed information about each listing includes the name of the listing broker.The information provided by this website is for the personal, non-commercial use of consumers and may not be used for any purpose other than to identify prospective properties consumers may be interested in purchasing. Some properties which appear for sale on this website may no longer be available because they are under contract, have Closed or are no longer being offered for sale. Some real estate firms do not participate in IDX and their listings do not appear on this website. Some properties listed with participating firms do not appear on this website at the request of the seller.

Listing information last updated on November 18th, 2025 at 5:50am CST.