Connect

Find us on...

Dashboard

Marjorie Dick Stuart

  • Cell 240-731-8079
Questions?

2214-22 N 4th St, PHILADELPHIA, PA – $650,000

  • $650k Price
  • .17 Acres
  • 600 DOM
  • $650k Price
  • .17 Acres
  • 600 DOM

2214-22 N 4th St

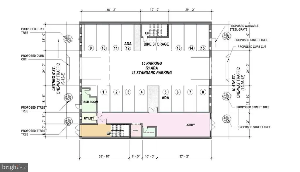
36 units zoning approved. Environmental phase 1 complete and clean. No need for further testing or environmental studies. Great opportunity to build in a growing area with no extra leg work to get zoning variances or approvals. 15 car parking spots. No underpinning and minimal excavation required for ease of cost to build (basement is for mechanicals only in the front of the building and the rest is slab on grade). QOZ- Qualified opportunity zone building, the right buyer can be eligible for tax benefits. Adjacent lots available for sale to use as space for dumpsters, machinery, or building materials located at 2204/ 2220 N. Leithgow. 3 properties available to purchase on orkney street just behind this lot to store materials and dumpsters during construction. 2239, 2241, 2245 orkney street.

Essential Information

  • MLS® #PAPH2336742
  • Price$650,000
  • Bathrooms0.00
  • Acres0.17
  • TypeLand
  • Sub-TypeLand
  • StatusActive

Community Information

  • Address2214-22 N 4th St
  • Area19133
  • CityPHILADELPHIA
  • CountyPHILADELPHIA-PA
  • StatePA
  • MunicipalityPHILADELPHIA
  • Zip Code19133

School Information

District

THE SCHOOL DISTRICT OF PHILADELPHIA

Additional Information

  • Date ListedMarch 28th, 2024
  • Days on Market600
  • ZoningRSA5

Listing Details

  • OfficeSupreme Real Estate
  • Office Contact(215) 914-5354
Please provide a valid email address.

Price Change History for 2214-22 N 4th St, PHILADELPHIA, PA (MLS® #PAPH2336742)

Date Details Price Change
Price Reduced $650,000 $175,000 (21.21%)
Price Reduced (from $1,100,000) $825,000 $275,000 (25.00%)

© 2020 BRIGHT, All Rights Reserved. Information deemed reliable but not guaranteed. The data relating to real estate for sale on this website appears in part through the BRIGHT Internet Data Exchange program, a voluntary cooperative exchange of property listing data between licensed real estate brokerage firms in which Coldwell Banker Residential Realty participates, and is provided by BRIGHT through a licensing agreement. Real estate listings held by brokerage firms other than Coldwell Banker Residential Realty are marked with the IDX logo and detailed information about each listing includes the name of the listing broker.The information provided by this website is for the personal, non-commercial use of consumers and may not be used for any purpose other than to identify prospective properties consumers may be interested in purchasing. Some properties which appear for sale on this website may no longer be available because they are under contract, have Closed or are no longer being offered for sale. Some real estate firms do not participate in IDX and their listings do not appear on this website. Some properties listed with participating firms do not appear on this website at the request of the seller.

Listing information last updated on November 18th, 2025 at 11:57am CST.