Connect

Find us on...

Dashboard

Marjorie Dick Stuart

  • Cell 240-731-8079
Questions?

100 Heritage Valley Dr #2 & 3, SEWELL, NJ – $649,500

  • $650k Price
  • 4,454 Sqft
  • 303 DOM
  • $650k Price
  • 4,454 Sqft
  • 303 DOM

100 Heritage Valley Dr #2 & 3

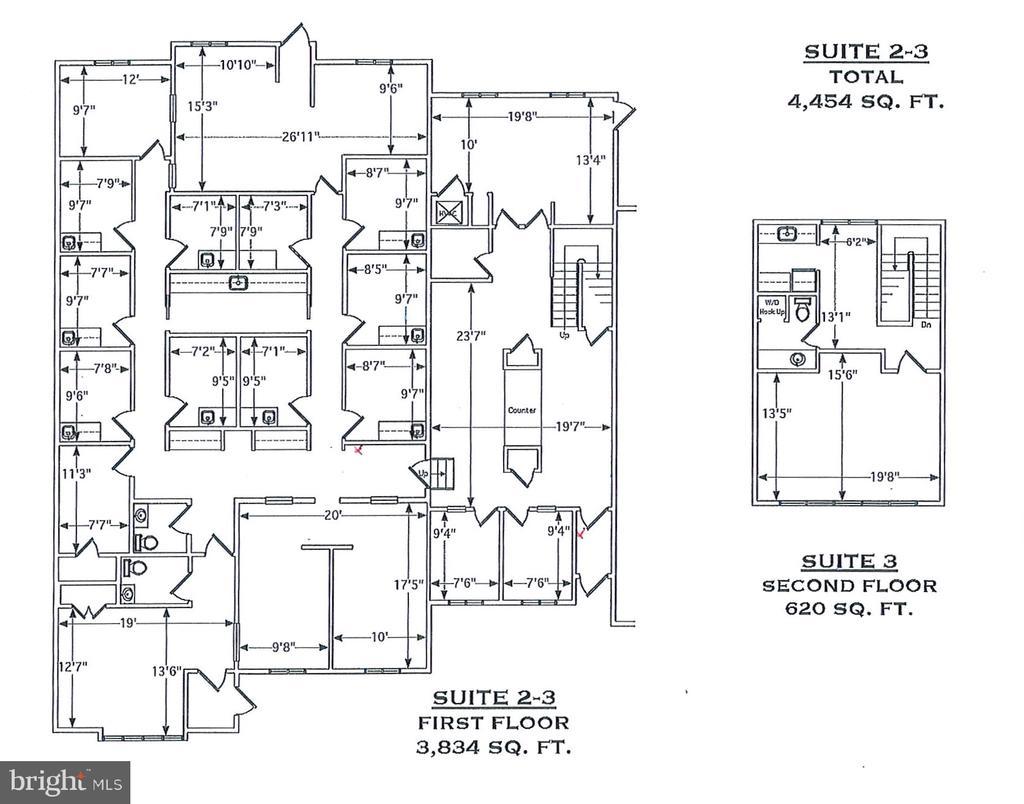
Key Features:4,454 square feet of well-appointed medical office space, Located within a professionally managed office condo complex, Reception and waiting area with ample seating, Multiple private exam rooms and treatment areas, Modern HVAC and high-quality interior finishes, ADA-compliant accessibility, Ample parking for patients and staff, Prime location with easy access to major roadways and nearby amenities! Welcome to 100 Heritage Valley Dr, Units 2 & 3, Washington Township, NJ 08080 – a prime medical office space offering 4,454 square feet of versatile, professional-grade space within a well-established office condominium. Situated in a desirable location with excellent accessibility and visibility, this property is ideal for healthcare providers seeking a modern, functional environment to serve their patients. The space is thoughtfully designed with high-end finishes and ample room for a variety of medical specialties. It features a flexible floor plan with multiple private exam rooms, office suites, spacious waiting areas, and support spaces to accommodate both medical staff and clients. Large windows provide natural light, enhancing the comfort and atmosphere of the entire office. The unit is meticulously maintained, offering a clean, professional setting for any medical practice or related healthcare use. This medical office condo is an excellent opportunity for investors, medical practitioners, or healthcare groups looking for a high-profile location to expand or establish their practice. Contact us today to schedule a viewing and explore the potential of this impressive space.

Essential Information

  • MLS® #NJGL2051808
  • Price$649,500
  • Bathrooms0.00
  • Square Footage4,454
  • Acres0.00
  • Year Built1984
  • TypeCommercial Sale
  • Sub-TypeCondo, Office
  • StatusActive

Community Information

  • Address100 Heritage Valley Dr #2 & 3
  • AreaWashington Twp (20818)
  • SubdivisionHERITAGE VALLEY
  • CitySEWELL
  • CountyGLOUCESTER-NJ
  • StateNJ
  • MunicipalityWASHINGTON TWP
  • Zip Code08080

Amenities

  • ViewGarden/Lawn, Street

Parking

Lighted Parking, Paved Parking, Unassigned

Interior

  • HeatingForced Air
  • CoolingCentral A/C
  • # of Stories2

Exterior

  • ExteriorAlum/Steel Siding
  • RoofAsphalt, Pitched, Shingle
  • FoundationSlab

Lot Description

Cleared, Corner Lot, Landscaping, Level, Lot Premium

School Information

  • DistrictWASHINGTON TOWNSHIP
  • HighWASHINGTON TOWNSHIP

Additional Information

  • Date ListedJanuary 14th, 2025
  • Days on Market303
  • Zoning0-1

Listing Details

  • Office Contact(856) 582-1200

Office

Keller Williams Realty - Washington Township

Please provide a valid email address.

Price Change History for 100 Heritage Valley Dr #2 & 3, SEWELL, NJ (MLS® #NJGL2051808)

Date Details Price Change
Price Reduced $649,500 $25,390 (3.76%)
Price Reduced (from $699,890) $674,890 $25,000 (3.57%)

© 2020 BRIGHT, All Rights Reserved. Information deemed reliable but not guaranteed. The data relating to real estate for sale on this website appears in part through the BRIGHT Internet Data Exchange program, a voluntary cooperative exchange of property listing data between licensed real estate brokerage firms in which Coldwell Banker Residential Realty participates, and is provided by BRIGHT through a licensing agreement. Real estate listings held by brokerage firms other than Coldwell Banker Residential Realty are marked with the IDX logo and detailed information about each listing includes the name of the listing broker.The information provided by this website is for the personal, non-commercial use of consumers and may not be used for any purpose other than to identify prospective properties consumers may be interested in purchasing. Some properties which appear for sale on this website may no longer be available because they are under contract, have Closed or are no longer being offered for sale. Some real estate firms do not participate in IDX and their listings do not appear on this website. Some properties listed with participating firms do not appear on this website at the request of the seller.

Listing information last updated on November 12th, 2025 at 10:15pm CST.