Connect

Find us on...

Dashboard

Marjorie Dick Stuart

  • Cell 240-731-8079
Questions?

14201 Platinum Dr, GAITHERSBURG, MD – $299,000

  • $299k Price
  • .28 Acres
  • 32 DOM
  • $299k Price
  • .28 Acres
  • 32 DOM

14201 Platinum Dr

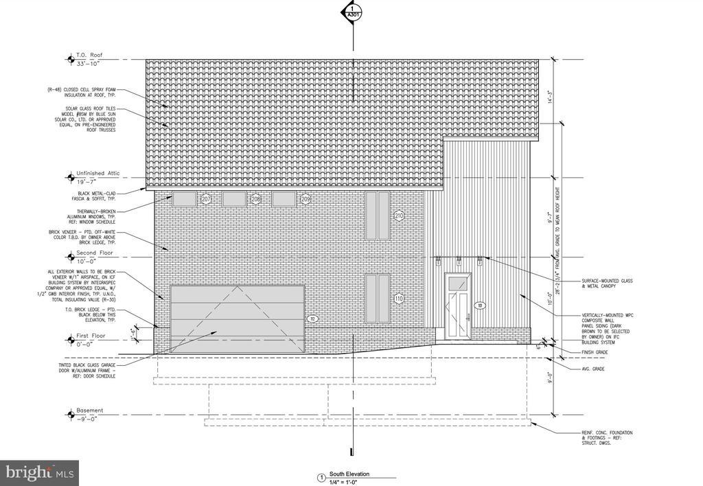
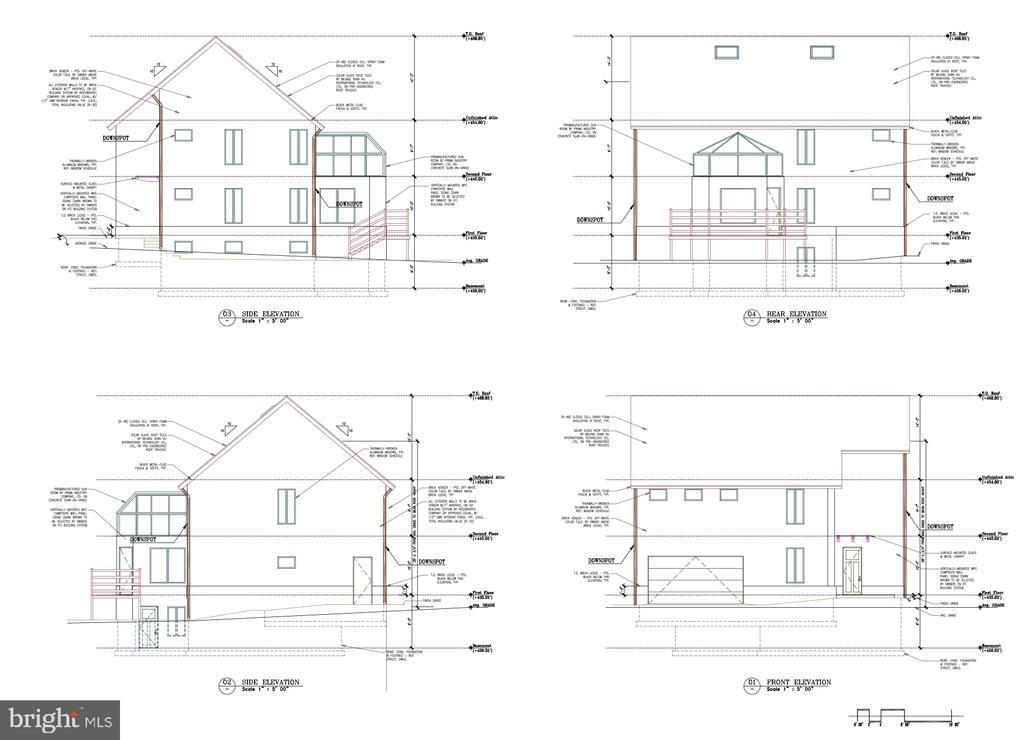
Exciting New Price!! A dream opportunity to own this LEVEL LOT in a quiet CUL-DE-SAC with mature trees - right in the highly desirable STONEBRIDGE community within the nationally ranked WoottonHigh School district!Low HOA fees but wonderful neighborhood amenities including a swimming pool, tennis courts, walking trails, soccer fields, and playgrounds. This lot is ideally located just blocks away from Stone Mill ES, and within minutes toTrader Joe's,Travilah Gateway Shopping Center, Fallsgrove, Rios, Downtown Crown, and the interstate corridor.City sewer, water, electric , gas line and fiberoptic internet at the street. Lot has been surveyed and soil analysis completed. Sale includes detailed architectural drawings for a 5 bed 5 1/2 bath single family home with basement, office, home entertainment, 2-car garage and modern amenities such as skylights, owner's suite, solar roof, formal dining sunroom, and electric car charging ports. Sale will include completed engineering drawings for structural, mechanical, electrical and plumbing. Clean title in hand, including all supporting documents and CAD files. Seller has invested more than $108,000 in the lot preparation work, but due to upcoming job relocation, the project can not be completed. Lot has a 54" underground stormwater drainage pipe that needs to be upgraded per DOT requirements in order to release building permits. Owner previously got an estimate of around $174,000 to reinstall the pipe.

Essential Information

  • MLS® #MDMC2195356
  • Price$299,000
  • Bathrooms0.00
  • Acres0.28
  • TypeLand
  • Sub-TypeLand
  • StatusActive Under Contract

Community Information

  • Address14201 Platinum Dr
  • CityGAITHERSBURG
  • CountyMONTGOMERY-MD
  • StateMD
  • Zip Code20878

Exterior

Lot Description

Backs to Trees, Cleared, Cul-de-sac, Level, Open

School Information

District

MONTGOMERY COUNTY PUBLIC SCHOOLS

Additional Information

  • Date ListedAugust 14th, 2025
  • Days on Market32
  • ZoningR200

Listing Details

Office

Long & Foster Real Estate, Inc.

Please provide a valid email address.

Price Change History for 14201 Platinum Dr, GAITHERSBURG, MD (MLS® #MDMC2195356)

Date Details Price Change
Active Under Contract (from Active)

© 2020 BRIGHT, All Rights Reserved. Information deemed reliable but not guaranteed. The data relating to real estate for sale on this website appears in part through the BRIGHT Internet Data Exchange program, a voluntary cooperative exchange of property listing data between licensed real estate brokerage firms in which Coldwell Banker Residential Realty participates, and is provided by BRIGHT through a licensing agreement. Real estate listings held by brokerage firms other than Coldwell Banker Residential Realty are marked with the IDX logo and detailed information about each listing includes the name of the listing broker.The information provided by this website is for the personal, non-commercial use of consumers and may not be used for any purpose other than to identify prospective properties consumers may be interested in purchasing. Some properties which appear for sale on this website may no longer be available because they are under contract, have Closed or are no longer being offered for sale. Some real estate firms do not participate in IDX and their listings do not appear on this website. Some properties listed with participating firms do not appear on this website at the request of the seller.

Listing information last updated on November 8th, 2025 at 4:30am CST.