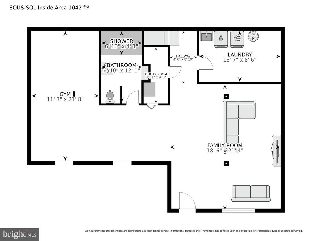
MAGNIFICENT 63-ACRE EQUESTRIAN ESTATE Located in Western Howard County, Maryland Whether you’re seeking an equestrian paradise or a luxurious private estate, your search ends here. This extraordinary property, nestled in Maryland’s highly sought-after Western Howard County Horse Country, offers breathtaking panoramic views framed by mature forest—delivering elegance, exclusivity, and privacy. LUXURY COUNTRY LIVING Experience refined country living on this 63-acre estate, where open fields, tree-lined borders, and timeless craftsmanship create an unmatched setting for equestrian or private enjoyment. BUILDING & EXPANSION POTENTIAL Opportunities may include additional residences, subdivision of a small parcel, and expansion of the existing home, subject to county approval. ESTATE HIGHLIGHTS The Residence An enchanting 3-bedroom chalet-style home featuring: • Vaulted ceilings • Sweeping countryside views • Elevated deck for stunning sunsets • Private gym and steam room • Walk-out basement to an expansive patio World-Class Equestrian Amenities • Indoor riding arena with heated lounge, tack room, blanket room, wash stall, and 15–17 stalls with sprinkler and fly control systems • Hay and shavings storage • Olympic-sized outdoor riding arena with professionally installed underground drainage • Direct access to the 6,700-acre Patuxent River State Park trail system • Surrounded by preserved farmland for enduring natural beauty A RARE OPPORTUNITY Currently home to a respected equestrian training center with a long-standing reputation, the property offers flexibility for equestrian, agricultural, or private use. Details about current operations are available to serious inquiries. For the correct TAX information, contact your agent for the listing documents. BY APPOINTMENT ONLY WITH A LICENSED AGENT – NO TRESPASSING CHECKOUT THE YOUTUBE VIDEO TOUR!
Bathroom - Walk-In Shower, Soaking Tub, CeilngFan(s), Entry Lvl BR, Skylight(s), Upgraded Countertops, Shades/Blinds, Wood Floors
Cable TV, Electric Available, Propane
Daylight, Full, Fully Finished, Outside Entrance, Poured Concrete, Walkout Level
Bay/Bow, Casement, Double Pane, Energy Efficient, Insulated, Screens, Skylights, Wood Frame
Berkshire Hathaway HomeServices PenFed Realty
| Date | Details | Price | Change | 
|---|---|---|---|
| Price Reduced (from $5,750,000) | $5,300,000 | $450,000 (7.83%) | |
| Active (from Coming Soon) | – | – | 
 © 2020 BRIGHT, All Rights Reserved. Information deemed reliable but not guaranteed. The data relating to real estate for sale on this website appears in part through the BRIGHT Internet Data Exchange program, a voluntary cooperative exchange of property listing data between licensed real estate brokerage firms in which Coldwell Banker Residential Realty participates, and is provided by BRIGHT through a licensing agreement. Real estate listings held by brokerage firms other than Coldwell Banker Residential Realty are marked with the IDX logo and detailed information about each listing includes the name of the listing broker.The information provided by this website is for the personal, non-commercial use of consumers and may not be used for any purpose other than to identify prospective properties consumers may be interested in purchasing. Some properties which appear for sale on this website may no longer be available because they are under contract, have Closed or are no longer being offered for sale. Some real estate firms do not participate in IDX and their listings do not appear on this website. Some properties listed with participating firms do not appear on this website at the request of the seller.
© 2020 BRIGHT, All Rights Reserved. Information deemed reliable but not guaranteed. The data relating to real estate for sale on this website appears in part through the BRIGHT Internet Data Exchange program, a voluntary cooperative exchange of property listing data between licensed real estate brokerage firms in which Coldwell Banker Residential Realty participates, and is provided by BRIGHT through a licensing agreement. Real estate listings held by brokerage firms other than Coldwell Banker Residential Realty are marked with the IDX logo and detailed information about each listing includes the name of the listing broker.The information provided by this website is for the personal, non-commercial use of consumers and may not be used for any purpose other than to identify prospective properties consumers may be interested in purchasing. Some properties which appear for sale on this website may no longer be available because they are under contract, have Closed or are no longer being offered for sale. Some real estate firms do not participate in IDX and their listings do not appear on this website. Some properties listed with participating firms do not appear on this website at the request of the seller.
Listing information last updated on October 31st, 2025 at 12:45am CDT.