Connect

Find us on...

Dashboard

Marjorie Dick Stuart

  • Cell 240-731-8079
Questions?

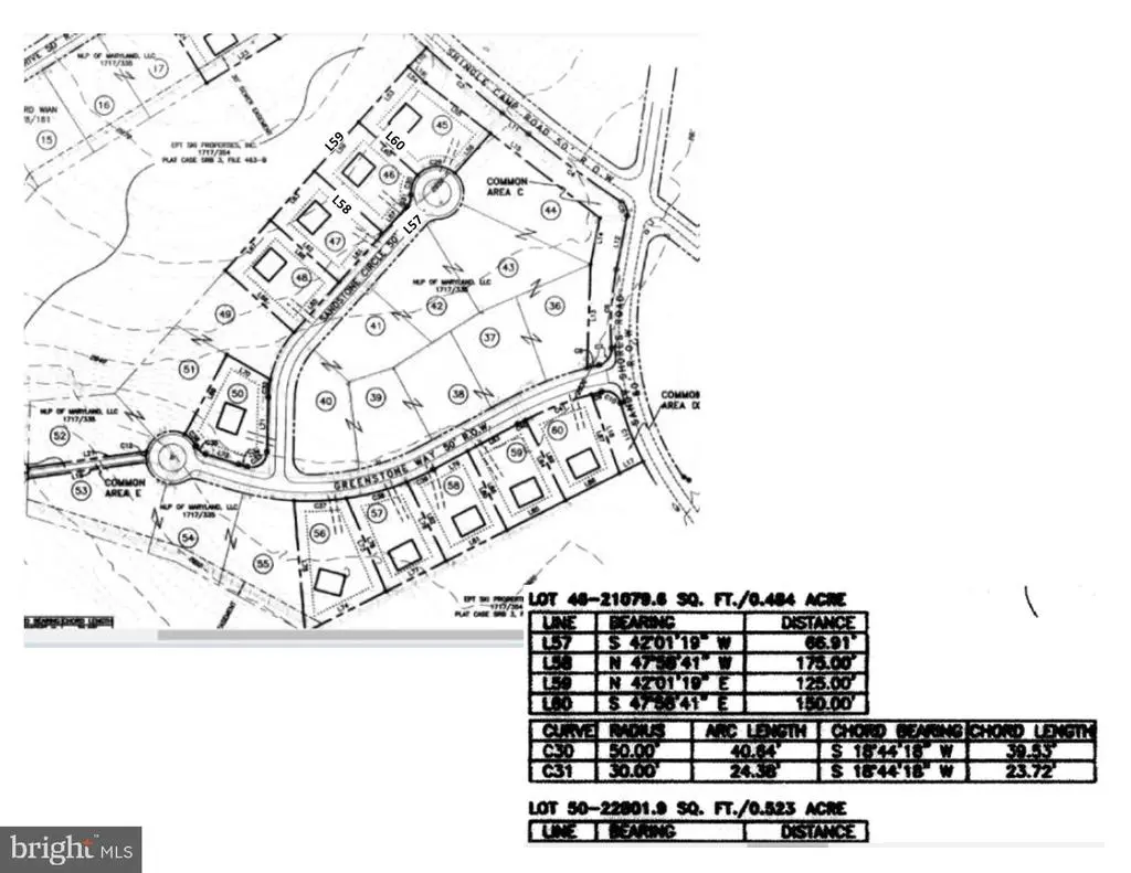
46 Sandstone Cir, MC HENRY, MD – $119,900

  • $120k Price
  • .48 Acres
  • 286 DOM
  • $120k Price
  • .48 Acres
  • 286 DOM

46 Sandstone Cir

Golf course building lot. Beautiful wooded, gently sloping lot directly adjoining Hole 8 of Lodestone Golf Course atop WISP resort ski mountain situated above the shores of Deep Creek Lake. Small gated community with paved and private maintained roads. Lot positioning on cul-de-sac road assists with no through, and very minimal traffic otherwise. Very nice building lot for nearly any style of home. Public water, sewer, and electricity to lot. Attractive and inviting area and surrounding appearance around lot, and especially super nice scenery and atmosphere on rear of lot adjoining course. Membership and public play course. WISP ski slopes literally just a few minutes from lot, as well whitewater rafting circulating course, Deep Creek Lake, Youghiogheny River for rafting, kayaking, and trophy trout fishing, as well as Swallow Falls, Herrington Manor, and Deep Creek Lake State Parks only 10-15 minutes easy drive or bicycle ride away. "Great area for just living", but too, relaxing, dining, biking, golfing, skiing, boating, fishing, tons of public year-round events, and more than can list. Everything and more to like!

Essential Information

  • MLS® #MDGA2008880
  • Price$119,900
  • Bathrooms0.00
  • Acres0.48
  • TypeLand
  • Sub-TypeLand
  • StatusActive

Community Information

  • Address46 Sandstone Cir
  • SubdivisionLODESTONE
  • CityMC HENRY
  • CountyGARRETT-MD
  • StateMD
  • Zip Code21541

Amenities

  • UtilitiesUnder Ground
  • ViewGolf Course, Trees/Woods

Exterior

Lot Description

Cul-de-sac, No Thru Street, Trees/Wooded, Year Round Access

School Information

  • DistrictGARRETT COUNTY PUBLIC SCHOOLS

Additional Information

  • Date ListedFebruary 14th, 2025
  • Days on Market286
  • ZoningR

Listing Details

  • Office1 Real Estate Source LLC
  • Office Contact3013878300
Please provide a valid email address.

© 2020 BRIGHT, All Rights Reserved. Information deemed reliable but not guaranteed. The data relating to real estate for sale on this website appears in part through the BRIGHT Internet Data Exchange program, a voluntary cooperative exchange of property listing data between licensed real estate brokerage firms in which Coldwell Banker Residential Realty participates, and is provided by BRIGHT through a licensing agreement. Real estate listings held by brokerage firms other than Coldwell Banker Residential Realty are marked with the IDX logo and detailed information about each listing includes the name of the listing broker.The information provided by this website is for the personal, non-commercial use of consumers and may not be used for any purpose other than to identify prospective properties consumers may be interested in purchasing. Some properties which appear for sale on this website may no longer be available because they are under contract, have Closed or are no longer being offered for sale. Some real estate firms do not participate in IDX and their listings do not appear on this website. Some properties listed with participating firms do not appear on this website at the request of the seller.

Listing information last updated on November 27th, 2025 at 12:00pm CST.