Connect

Find us on...

Dashboard

Marjorie Dick Stuart

  • Cell 240-731-8079
Questions?

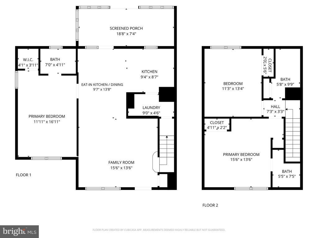
496 Twin Cove, SOLOMONS, MD – $364,900

  • 3 Beds
  • 3 Baths
  • 1,384 Sqft
  • .17 Acres
  • 3 Beds
  • 3 Baths
  • 1,384 Sqft
  • .17 Acres

496 Twin Cove

Professional Photo's are Coming Soon! Welcome to this beautifully maintained townhome in the sought-after Twin Cove neighborhood, where coastal charm meets everyday convenience. Your own deeded boat slip conveys, giving you effortless access to the water for boating, fishing, and sunset cruises. Inside, you’ll find an inviting open layout with hardwood flooring, granite countertops, and stainless steel appliances, plus a fully enclosed sunroom that expands your living space year-round—perfect for morning coffee or evening relaxation. The main level features a primary suite with a full bath, ideal for single-level living, while the upper level offers a second primary suite, perfect for guests or multi-generational needs. Enjoy a fully fenced backyard for privacy and outdoor entertaining, along with a one-car garage. The HOA provides minor but welcome services, including limited exterior cleanup and front-yard lawn maintenance, so you can spend more time on the water. Set in a quiet, private community, this home is just minutes from boating, waterfront dining, shopping, and scenic walking paths, offering the perfect blend of comfort, style, and water oriented lifestyle.

Essential Information

  • MLS® #MDCA2023246
  • Price$364,900
  • Bedrooms3
  • Bathrooms3.00
  • Full Baths3
  • Square Footage1,384
  • Acres0.17
  • Year Built1990
  • TypeResidential
  • Sub-TypeEnd of Row/Townhouse
  • StyleColonial
  • StatusActive

Community Information

  • Address496 Twin Cove
  • SubdivisionTWIN COVE
  • CitySOLOMONS
  • CountyCALVERT-MD
  • StateMD
  • Zip Code20688

Amenities

  • ParkingConcrete Driveway
  • # of Garages1
  • GaragesGarage - Front Entry

Amenities

Entry Lvl BR, Upgraded Countertops, Shades/Blinds, CeilngFan(s), Master Bath(s), Wood Floors

Interior

  • Interior FeaturesFloor Plan-Open
  • HeatingHeat Pump(s)
  • CoolingCentral A/C, Heat Pump(s)
  • # of Stories2
  • Stories2 Story

Appliances

Dishwasher, Exhaust Fan, Refrigerator, Stove, Microwave, Icemaker, Washer/Dryer Stacked

Exterior

  • ExteriorVinyl Siding
  • WindowsDouble Pane
  • RoofShingle
  • FoundationConcrete Perimeter

Exterior Features

Porch-enclosed, Patio, Fenced-Fully

School Information

  • DistrictCALVERT COUNTY PUBLIC SCHOOLS

Additional Information

  • Date ListedOctober 19th, 2025
  • Days on Market22
  • ZoningR-1

Listing Details

Office

Berkshire Hathaway HomeServices PenFed Realty

Please provide a valid email address.

Price Change History for 496 Twin Cove, SOLOMONS, MD (MLS® #MDCA2023246)

Date Details Price Change
Active (from Coming Soon)

© 2020 BRIGHT, All Rights Reserved. Information deemed reliable but not guaranteed. The data relating to real estate for sale on this website appears in part through the BRIGHT Internet Data Exchange program, a voluntary cooperative exchange of property listing data between licensed real estate brokerage firms in which Coldwell Banker Residential Realty participates, and is provided by BRIGHT through a licensing agreement. Real estate listings held by brokerage firms other than Coldwell Banker Residential Realty are marked with the IDX logo and detailed information about each listing includes the name of the listing broker.The information provided by this website is for the personal, non-commercial use of consumers and may not be used for any purpose other than to identify prospective properties consumers may be interested in purchasing. Some properties which appear for sale on this website may no longer be available because they are under contract, have Closed or are no longer being offered for sale. Some real estate firms do not participate in IDX and their listings do not appear on this website. Some properties listed with participating firms do not appear on this website at the request of the seller.

Listing information last updated on November 9th, 2025 at 6:30pm CST.