Connect

Find us on...

Dashboard

Marjorie Dick Stuart

  • Cell 240-731-8079
Questions?

175 Tucker Ct, FRIENDSHIP, MD – $1,295,000

  • 4 Beds
  • Baths
  • 4,160 Sqft
  • 2.9 Acres
  • 4 Beds
  • Baths
  • 4,160 Sqft
  • 2.9 Acres

175 Tucker Ct

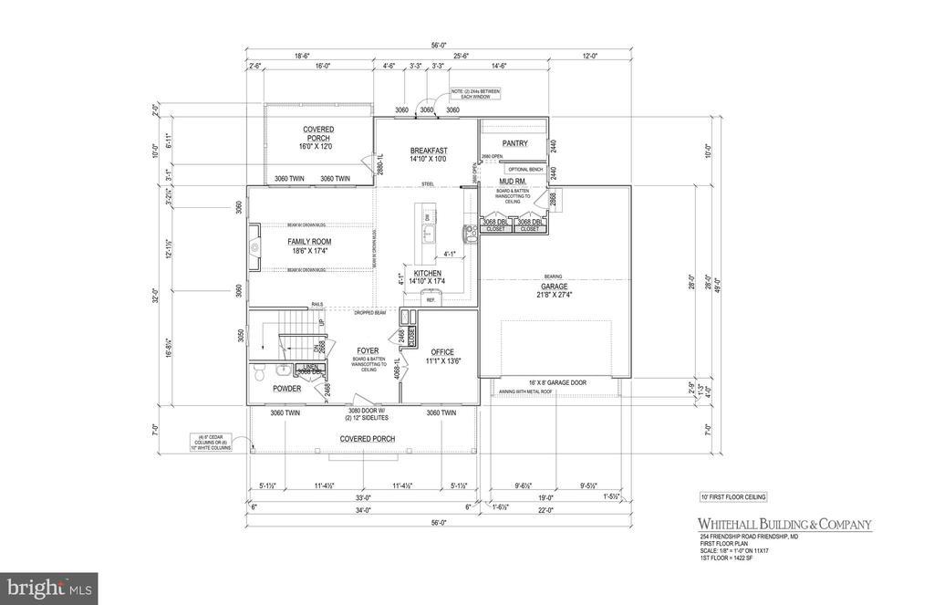
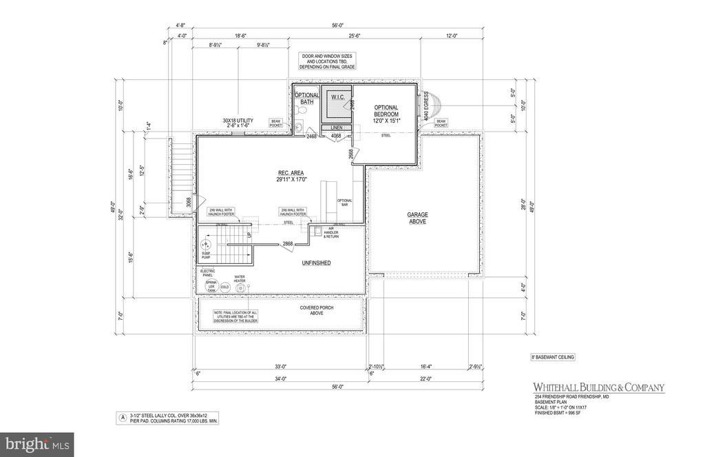
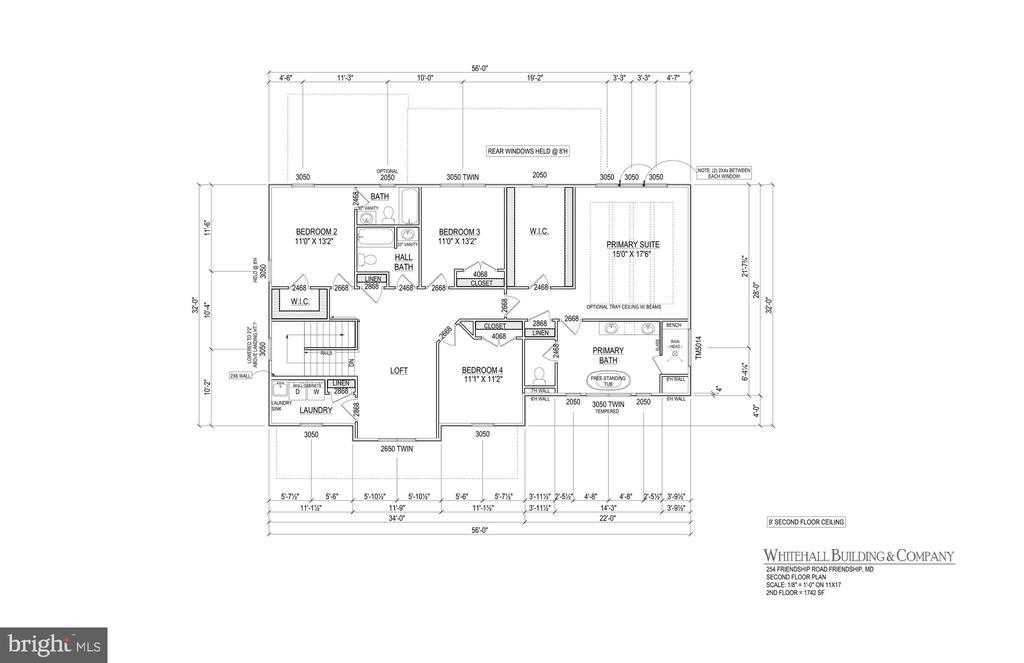
Welcome to 175 Tucker Court—an exceptional opportunity to build your dream home on over 2 acres of level, open farmland in the heart of Southern Anne Arundel County. This peaceful homesite offers the perfect blend of country charm and refined living, just minutes from commuter routes, marinas, and all the small-town conveniences of Lothian, Harwood, and Davidsonville. The proposed Tilghman Model by Whitehall Building & Company (please visit their site at WhitehallBuilding for more info) is a thoughtfully designed classic colonial that blends timeless architecture with modern functionality. The main level features a light-filled, open-concept floor plan anchored by a gourmet kitchen with an oversized island, a spacious dining area, and a welcoming family room that flows seamlessly to a covered back porch—ideal for relaxing or entertaining while taking in the wide-open views. Additional main-level highlights include a walk-in pantry, private home office, mudroom, and powder room. Upstairs, the luxurious primary suite includes a spa-inspired ensuite bath and a large walk-in closet. Three additional bedrooms (one with a private bath) and a convenient bedroom-level laundry room complete the upper level. The lower level offers a large recreation space with options to add a fifth bedroom, full bath, and wet bar, giving you even more flexibility. Durable HardiePlank siding and other premium finishes come standard. Buyers who use the builder’s preferred lender and title company will receive $10,000 toward options or upgrades. Financing Notes: Co-perm financing is required, with 100% VA co-perm and a 5% down, no PMI option available for qualified buyers in select professional and medical fields. Please note: All photos are examples of the builder’s previous work and may include optional upgrades. Pre-approval for construction-to-permanent financing is required before scheduling a builder meeting or touring the property. Appointments are required—please do not visit the property without one.

Essential Information

  • MLS® #MDAA2110214
  • Price$1,295,000
  • Bedrooms4
  • Bathrooms3.50
  • Full Baths3
  • Half Baths1
  • Square Footage4,160
  • Acres2.90
  • Year Built2025
  • TypeResidential
  • Sub-TypeDetached
  • StyleColonial
  • StatusActive

Community Information

  • Address175 Tucker Ct
  • SubdivisionNONE
  • CityFRIENDSHIP
  • CountyANNE ARUNDEL-MD
  • StateMD
  • Zip Code20758

Amenities

  • ParkingAsphalt Driveway
  • # of Garages2
  • GaragesGarage - Front Entry

Amenities

Pantry, Master Bath(s), Recessed Lighting, Soaking Tub, Walk-in Closet(s)

Interior

  • Interior FeaturesFloor Plan-Open
  • HeatingHeat Pump(s)
  • CoolingCentral A/C, Heat Pump(s)
  • Has BasementYes
  • FireplaceYes
  • # of Fireplaces1
  • FireplacesGas/Propane
  • # of Stories3
  • Stories3

Basement

Connecting Stairway, Improved, Interior Access, Outside Entrance, Partially Finished, Poured Concrete, Sump Pump

Exterior

  • ExteriorHardiPlank
  • RoofArchitectural Shingle
  • FoundationConcrete Perimeter

School Information

  • ElementaryTRACEYS
  • MiddleSOUTHERN
  • HighSOUTHERN

District

ANNE ARUNDEL COUNTY PUBLIC SCHOOLS

Additional Information

  • Date ListedMarch 31st, 2025
  • Days on Market222
  • ZoningRA

Listing Details

  • OfficeRE/MAX Leading Edge
Please provide a valid email address.

© 2020 BRIGHT, All Rights Reserved. Information deemed reliable but not guaranteed. The data relating to real estate for sale on this website appears in part through the BRIGHT Internet Data Exchange program, a voluntary cooperative exchange of property listing data between licensed real estate brokerage firms in which Coldwell Banker Residential Realty participates, and is provided by BRIGHT through a licensing agreement. Real estate listings held by brokerage firms other than Coldwell Banker Residential Realty are marked with the IDX logo and detailed information about each listing includes the name of the listing broker.The information provided by this website is for the personal, non-commercial use of consumers and may not be used for any purpose other than to identify prospective properties consumers may be interested in purchasing. Some properties which appear for sale on this website may no longer be available because they are under contract, have Closed or are no longer being offered for sale. Some real estate firms do not participate in IDX and their listings do not appear on this website. Some properties listed with participating firms do not appear on this website at the request of the seller.

Listing information last updated on November 7th, 2025 at 10:46am CST.