Connect

Find us on...

Dashboard

Marjorie Dick Stuart

  • Cell 240-731-8079
Questions?

28 Staten Dr, HOCKESSIN, DE – $599,999

  • 4 Beds
  • Baths
  • 2,344 Sqft
  • .38 Acres
  • 4 Beds
  • Baths
  • 2,344 Sqft
  • .38 Acres

28 Staten Dr

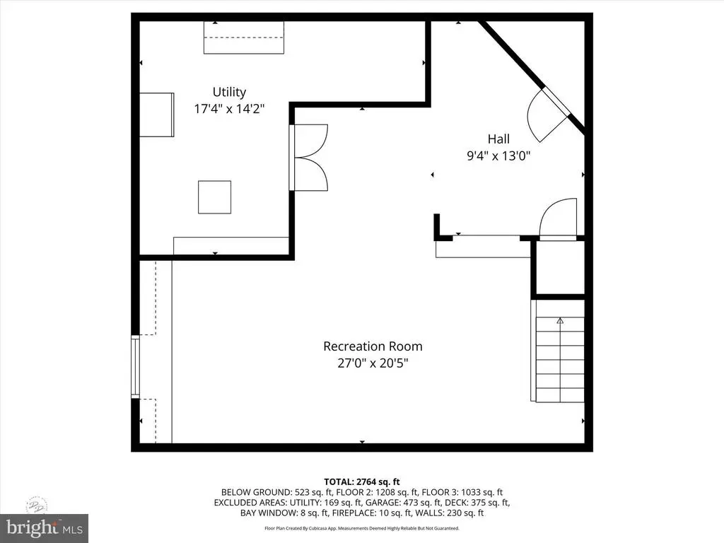
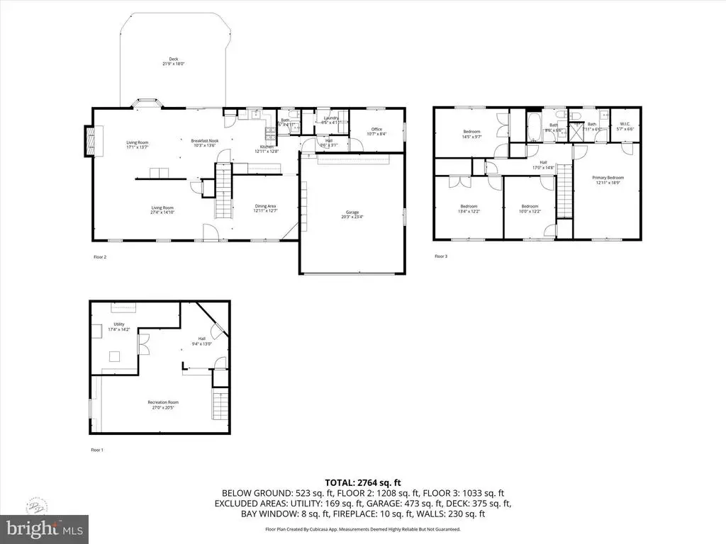
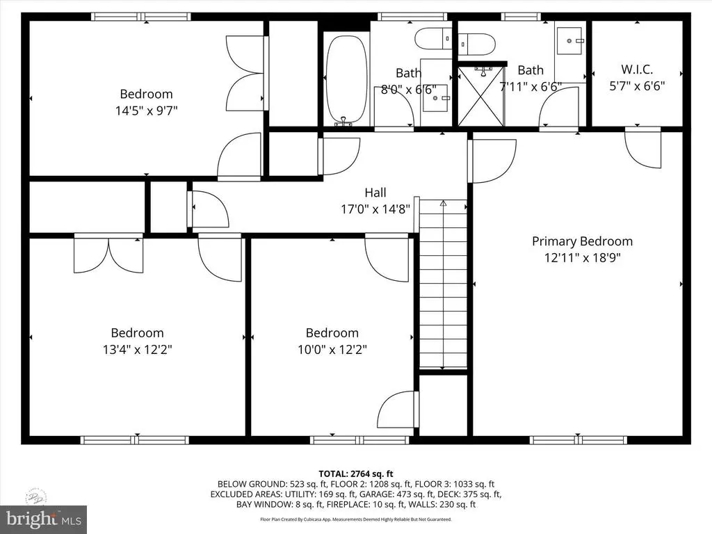
Welcome to 28 Staten Dr. in the very desirable neighborhood of Stuyvesant Hills in Hockessin. Home features approximately 2900 Sq Ft of finished space which includes the lower Rec room. Featuring 4 bedrooms and 2 full and 1 half bathrooms on the upper level. Enter into the foyer with beautiful site finished hardwood flooring that continues throughout much of the main level. Also take note of all of the custom moulding throughout. Great floorplan for entertaining with the kitchen open to the breakfast room and family room with wood burning fireplace and bay window overlooking the backyard. The main level also features a home office and laundry room. In the kitchen you will find gas cooking, granite counter tops and cherry cabinets, plus tiled backsplash. The upper level showcases 4 nicely sized bedrooms. The primary Bedroom has a large walk-in closet and en suite bathroom with a seamless glass shower and comfort height dual vanity, with marble top. The additional bedrooms have large closets for plenty of storage. The basement level features a finished Rec Room area and utility space. Located in Red Clay school district with close proximity to downtown Hockessin, shopping, I-95 and Christiana Hospital and Christiana Mall. Recent updates include a new insulated garage door in 2025, an entirely new roof in 2024 , New Bosch dishwasher 2024 , an LG double oven gas 5 burner range in 2022, 50 gallon hot water heater 2023, In 2020 a whole house humidifier, In 2019 a whirlpool microwave, in 2016, a 4 ton AC and Heater, In 2016 a 19 CF refrigerator and a honeywell electronic air filter.

Essential Information

  • MLS® #DENC2090390
  • Price$599,999
  • Bedrooms4
  • Bathrooms2.50
  • Full Baths2
  • Half Baths1
  • Square Footage2,344
  • Acres0.38
  • Year Built1985
  • TypeResidential
  • Sub-TypeDetached
  • StyleTraditional
  • StatusPending

Community Information

  • Address28 Staten Dr
  • AreaHockssn/Greenvl/Centrvl
  • SubdivisionSTUYVESANT HILLS
  • CityHOCKESSIN
  • CountyNEW CASTLE-DE
  • StateDE
  • Zip Code19707

Amenities

  • UtilitiesCable TV
  • # of Garages2
  • GaragesGarage Door Opener
  • ViewGarden/Lawn

Amenities

Primary Bath(s), Butlers Pantry

Interior

  • HeatingForced Air
  • CoolingCentral A/C
  • Has BasementYes
  • BasementFull, Fully Finished
  • FireplaceYes
  • # of Fireplaces1
  • FireplacesBrick
  • Stories2

Appliances

Built-In Range, Oven - Self Cleaning, Dishwasher, Disposal

Exterior

  • Exterior FeaturesDeck(s)
  • Lot DescriptionSloping
  • RoofPitched
  • FoundationBrick/Mortar

Exterior

Aluminum Siding, Wood Siding, Brick

Construction

Aluminum Siding, Wood Siding, Brick

School Information

  • DistrictRED CLAY CONSOLIDATED
  • HighALEXIS I. DUPONT

Additional Information

  • Date ListedOctober 9th, 2025
  • Days on Market11
  • ZoningRESID

Listing Details

  • OfficeRE/MAX Associates - Newark
  • Office Contact(302) 453-3200
Please provide a valid email address.

Price Change History for 28 Staten Dr, HOCKESSIN, DE (MLS® #DENC2090390)

Date Details Price Change
Pending (from Active)

© 2020 BRIGHT, All Rights Reserved. Information deemed reliable but not guaranteed. The data relating to real estate for sale on this website appears in part through the BRIGHT Internet Data Exchange program, a voluntary cooperative exchange of property listing data between licensed real estate brokerage firms in which Coldwell Banker Residential Realty participates, and is provided by BRIGHT through a licensing agreement. Real estate listings held by brokerage firms other than Coldwell Banker Residential Realty are marked with the IDX logo and detailed information about each listing includes the name of the listing broker.The information provided by this website is for the personal, non-commercial use of consumers and may not be used for any purpose other than to identify prospective properties consumers may be interested in purchasing. Some properties which appear for sale on this website may no longer be available because they are under contract, have Closed or are no longer being offered for sale. Some real estate firms do not participate in IDX and their listings do not appear on this website. Some properties listed with participating firms do not appear on this website at the request of the seller.

Listing information last updated on November 17th, 2025 at 6:40am CST.