Connect

Find us on...

Dashboard

Marjorie Dick Stuart

  • Cell 240-731-8079
Questions?

3328 Georgia Ave Nw, WASHINGTON, DC – $850,000

  • $850k Price
  • 2,089 Sqft
  • .03 Acres
  • 18 DOM
  • $850k Price
  • 2,089 Sqft
  • .03 Acres
  • 18 DOM

3328 Georgia Ave Nw

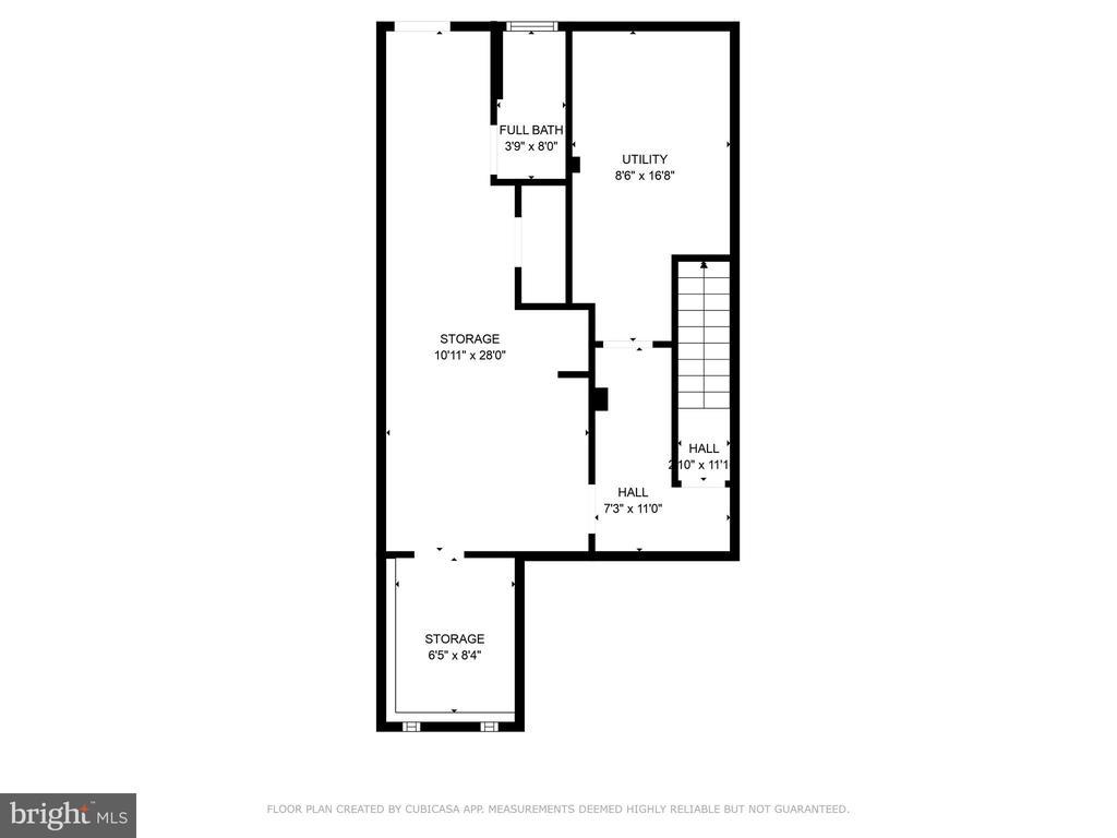
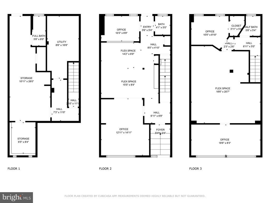
Don’t miss this versatile three-level commercial property ideally located in the heart of Park View. Zoned NC-7 Vertical Mixed Use, it allows for a combination of commercial space with residential units above —unlocking strong income potential. The main level features a welcoming retail or shop area with a half bath and rear access. Upstairs offers generous office and flex space along with another half bath. The lower level includes ample storage, a full bath, and a second rear exit for added convenience. A smart investment in one of D.C.’s most dynamic neighborhoods!

Essential Information

  • MLS® #DCDC2228244
  • Price$850,000
  • Bathrooms0.00
  • Square Footage2,089
  • Acres0.03
  • Year Built1909
  • TypeCommercial Sale
  • Sub-TypeOffice
  • StatusActive

Community Information

  • Address3328 Georgia Ave Nw
  • CityWASHINGTON
  • CountyWASHINGTON-DC
  • StateDC
  • Zip Code20010

Interior

  • HeatingForced Air
  • CoolingCentral A/C

Exterior

  • ExteriorBrick and Siding, Brick Veneer
  • FoundationBrick/Mortar

School Information

  • MiddleRAYMOND EDUCATION CAMPUS
  • HighCARDOZO EDUCATION CAMPUS

District

DISTRICT OF COLUMBIA PUBLIC SCHOOLS

Additional Information

  • Date ListedOctober 21st, 2025
  • Days on Market18
  • ZoningNC-7 VERTICAL MIXED USE

Listing Details

  • OfficeSamson Properties
Please provide a valid email address.

© 2020 BRIGHT, All Rights Reserved. Information deemed reliable but not guaranteed. The data relating to real estate for sale on this website appears in part through the BRIGHT Internet Data Exchange program, a voluntary cooperative exchange of property listing data between licensed real estate brokerage firms in which Coldwell Banker Residential Realty participates, and is provided by BRIGHT through a licensing agreement. Real estate listings held by brokerage firms other than Coldwell Banker Residential Realty are marked with the IDX logo and detailed information about each listing includes the name of the listing broker.The information provided by this website is for the personal, non-commercial use of consumers and may not be used for any purpose other than to identify prospective properties consumers may be interested in purchasing. Some properties which appear for sale on this website may no longer be available because they are under contract, have Closed or are no longer being offered for sale. Some real estate firms do not participate in IDX and their listings do not appear on this website. Some properties listed with participating firms do not appear on this website at the request of the seller.

Listing information last updated on November 7th, 2025 at 10:46am CST.