Connect

Find us on...

Dashboard

Marjorie Dick Stuart

  • Cell 240-731-8079
Questions?

L1-64b Bear Island Pkwy, ZION CROSSROADS, VA – $609,900

  • 4 Beds
  • Baths
  • 2,758 Sqft
  • .27 Acres
  • 4 Beds
  • Baths
  • 2,758 Sqft
  • .27 Acres

L1-64b Bear Island Pkwy

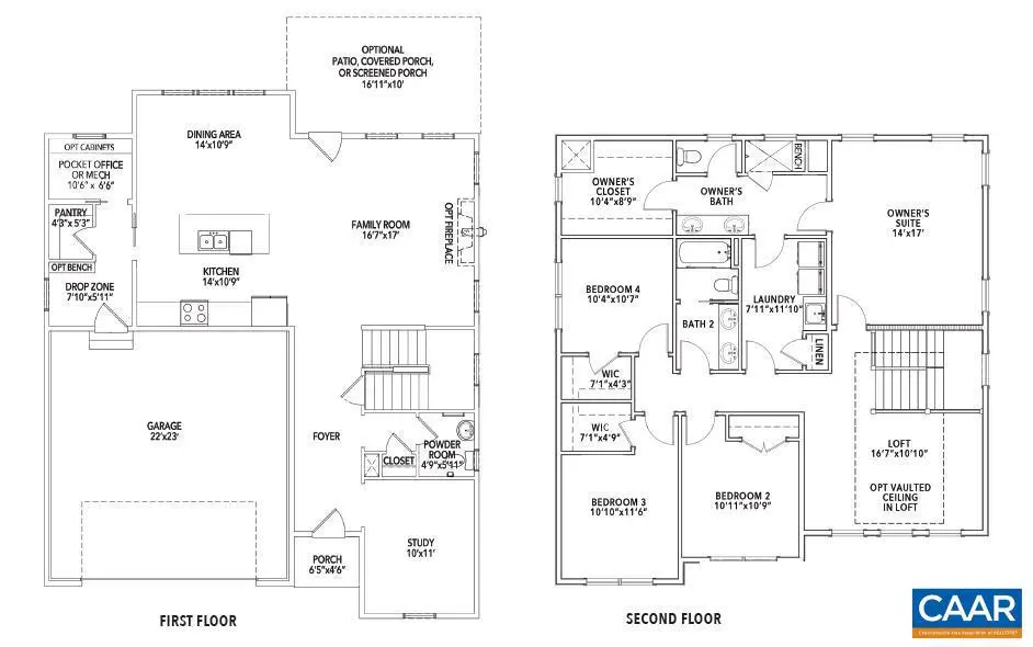
Build the "Aspen" floor plan from the ground up in Spring Creek. The main level centers around a spacious kitchen that connects easily to the family room and dining area, offering an open and functional layout. You?ll also find a private study, walk-in pantry, half bath, and mudroom?thoughtful touches that make everyday routines simpler. Upstairs, there's a flexible loft space that can serve a variety of needs, along with a connected laundry room just off the primary suite for added ease. The primary suite includes a roomy bathroom, and there are three more bedrooms plus a shared split bath to round out the second floor. Standard features include 2x6 exterior walls, energy-efficient windows, wooden shelving, a tankless water heater, and a high-efficiency HVAC system. Photos shown are from a previously built Aspen plan and may include upgrades. Price may vary by elevation and lot; basement foundation is available. Estimated build time is 7 to 8 months, depending on the homesite.,Painted Cabinets,Fireplace in Family Room

Essential Information

  • MLS® #671094
  • Price$609,900
  • Bedrooms4
  • Bathrooms2.50
  • Full Baths2
  • Half Baths1
  • Square Footage2,758
  • Acres0.27
  • Year Built2026
  • TypeResidential
  • Sub-TypeDetached
  • StyleCraftsman
  • StatusActive

Community Information

  • AddressL1-64b Bear Island Pkwy
  • SubdivisionSPRING CREEK
  • CityZION CROSSROADS
  • CountyLOUISA-VA
  • StateVA
  • Zip Code22942

Amenities

  • ViewOther
  • Has PoolYes

Amenities

Primary Bath(s), Washer/Dryer Hookups Only

Interior

  • HeatingCentral, Forced Air
  • FireplaceYes
  • # of Fireplaces1
  • Stories2

Appliances

Washer/Dryer Hookups Only, ENERGY STAR Dishwasher, Water Heater - Tankless

Cooling

Programmable Thermostat, Other, Fresh Air Recovery System, Central A/C

Fireplaces

Gas/Propane, Fireplace - Glass Doors

Exterior

  • Exterior FeaturesGutter System
  • Lot DescriptionCleared
  • FoundationConcrete Perimeter, Slab

Exterior

Aluminum Siding, Fiber Cement, Stone, HardiPlank Type

Windows

Insulated, Low-E, Screens, Double Hung, Vinyl Clad, ENERGY STAR Qualified

Roof

Architectural Shingle, Composite

Construction

Aluminum Siding, Fiber Cement, Stone, HardiPlank Type, Cement Siding, Advanced Framing, Blown-In Insulation, Low VOC Insulation, Low VOC Products/Finishes

School Information

  • DistrictLOUISA COUNTY PUBLIC SCHOOLS
  • ElementaryMOSS-NUCKOLS
  • MiddleLOUISA
  • HighLOUISA

Additional Information

  • Date ListedNovember 14th, 2025
  • Days on Market1
  • ZoningR

Listing Details

  • OfficeNEST REALTY GROUP
Please provide a valid email address.

© 2020 BRIGHT, All Rights Reserved. Information deemed reliable but not guaranteed. The data relating to real estate for sale on this website appears in part through the BRIGHT Internet Data Exchange program, a voluntary cooperative exchange of property listing data between licensed real estate brokerage firms in which Coldwell Banker Residential Realty participates, and is provided by BRIGHT through a licensing agreement. Real estate listings held by brokerage firms other than Coldwell Banker Residential Realty are marked with the IDX logo and detailed information about each listing includes the name of the listing broker.The information provided by this website is for the personal, non-commercial use of consumers and may not be used for any purpose other than to identify prospective properties consumers may be interested in purchasing. Some properties which appear for sale on this website may no longer be available because they are under contract, have Closed or are no longer being offered for sale. Some real estate firms do not participate in IDX and their listings do not appear on this website. Some properties listed with participating firms do not appear on this website at the request of the seller.

Listing information last updated on November 15th, 2025 at 3:16am CST.