Connect

Find us on...

Dashboard

Marjorie Dick Stuart

  • Cell 240-731-8079
Questions?

L1-67c Bear Island Pkwy, ZION CROSSROADS, VA – $661,400

  • 3 Beds
  • Baths
  • 2,217 Sqft
  • .32 Acres
  • 3 Beds
  • Baths
  • 2,217 Sqft
  • .32 Acres

L1-67c Bear Island Pkwy

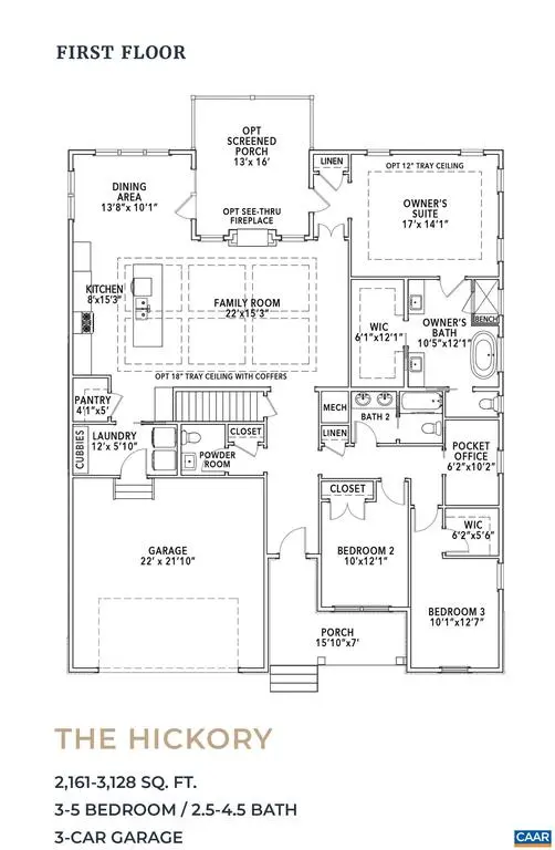
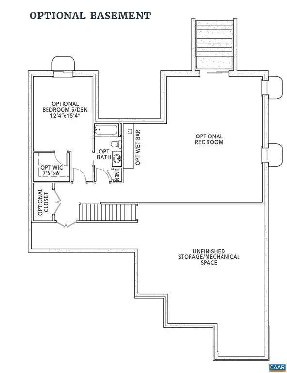
The Hickory with an unfinished walkout basement is a to-be-built home in the newly released section of Spring Creek, with an estimated build time of 7 to 8 months. Set on a homesite just under a third of an acre, this main-level living design includes 3 bedrooms, 2.5 baths, and a 2-car garage. The layout centers around an open kitchen, dining area, and family room with a gas fireplace for added comfort. The primary suite features a spacious bath with a frameless glass shower, dual vanities, and a soaking tub. Two additional bedrooms, a full bath, a pocket office, walk-in pantry, and a combined mudroom and laundry room complete the layout. Buyers will have the opportunity to personalize interior selections in the design studio. Photos are from a previously built Hickory and may include optional features. Final pricing may vary by elevation and lot.,Fireplace in Family Room

Essential Information

  • MLS® #670653
  • Price$661,400
  • Bedrooms3
  • Bathrooms2.50
  • Full Baths2
  • Half Baths1
  • Square Footage2,217
  • Acres0.32
  • Year Built2026
  • TypeResidential
  • Sub-TypeDetached
  • StyleRanch/Rambler, Craftsman
  • StatusActive

Community Information

  • AddressL1-67c Bear Island Pkwy
  • SubdivisionSPRING CREEK
  • CityZION CROSSROADS
  • CountyLOUISA-VA
  • StateVA
  • Zip Code22942

Amenities

  • ViewOther
  • Has PoolYes

Amenities

Entry Level Bedroom, Washer/Dryer Hookups Only

Interior

  • HeatingCentral, Forced Air
  • Has BasementYes
  • BasementFull, Unfinished
  • FireplaceYes
  • # of Fireplaces1
  • Stories1

Appliances

Washer/Dryer Hookups Only, ENERGY STAR Dishwasher, Water Heater - Tankless

Cooling

Other, Fresh Air Recovery System, Central A/C

Fireplaces

Gas/Propane, Fireplace - Glass Doors

Exterior

  • Exterior FeaturesGutter System
  • Lot DescriptionCleared, Sloping
  • FoundationConcrete Perimeter

Exterior

Aluminum Siding, Fiber Cement, Stone, HardiPlank Type

Windows

Insulated, Low-E, Screens, Double Hung, Vinyl Clad, ENERGY STAR Qualified

Roof

Architectural Shingle, Composite

Construction

Aluminum Siding, Fiber Cement, Stone, HardiPlank Type, Cement Siding, Advanced Framing, Blown-In Insulation, Low VOC Insulation, Low VOC Products/Finishes

School Information

  • DistrictLOUISA COUNTY PUBLIC SCHOOLS
  • ElementaryMOSS-NUCKOLS
  • MiddleLOUISA
  • HighLOUISA

Additional Information

  • Date ListedOctober 31st, 2025
  • Days on Market12
  • ZoningR

Listing Details

  • OfficeNEST REALTY GROUP
Please provide a valid email address.

© 2020 BRIGHT, All Rights Reserved. Information deemed reliable but not guaranteed. The data relating to real estate for sale on this website appears in part through the BRIGHT Internet Data Exchange program, a voluntary cooperative exchange of property listing data between licensed real estate brokerage firms in which Coldwell Banker Residential Realty participates, and is provided by BRIGHT through a licensing agreement. Real estate listings held by brokerage firms other than Coldwell Banker Residential Realty are marked with the IDX logo and detailed information about each listing includes the name of the listing broker.The information provided by this website is for the personal, non-commercial use of consumers and may not be used for any purpose other than to identify prospective properties consumers may be interested in purchasing. Some properties which appear for sale on this website may no longer be available because they are under contract, have Closed or are no longer being offered for sale. Some real estate firms do not participate in IDX and their listings do not appear on this website. Some properties listed with participating firms do not appear on this website at the request of the seller.

Listing information last updated on November 15th, 2025 at 12:04am CST.