Connect

Find us on...

Dashboard

Marjorie Dick Stuart

  • Cell 240-731-8079
Questions?

W Locust, WOODSTOCK, VA – $425,000

  • $425k Price
  • .56 Acres
  • 8 DOM
  • $425k Price
  • .56 Acres
  • 8 DOM

W Locust

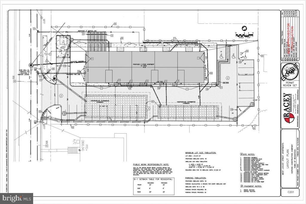
Prime investment opportunity in the Town of Woodstock! This 27,273 sq. ft. B-1 zoned lot is located just half a block from Main Street and offers a “by-right” build for up to an 18-unit apartment complex—no special use permits or hearings required. Site engineering by Racey’s Engineering is 99% complete and has already undergone initial review by both the town and county. The current design includes a 15-unit, three-story building featuring two-bedroom, two-bathroom units of approximately 900 sq. ft. each, with rear balconies and tenant-paid utilities. The lot accommodates all required parking, and the project is being finalized for swift site plan approval. An excellent opportunity for developers seeking a ready-to-go multifamily project in a desirable Shenandoah Valley location. Additional Opportunity: The seller also owns a nearby parcel on Foundry Street suitable for an 8-unit apartment building. Purchasing both the Locust Street and Foundry Street lots could allow for a combined 23-unit multifamily development within downtown Woodstock. Properties may be purchased separately or together for scale and flexibility. Disclaimer: Main image & Interior images are conceptual renderings of a proposed design and are provided for visualization purposes only. The lot is being sold with plans; construction and finish selections will be determined by the purchaser.

Essential Information

  • MLS® #VASH2012806
  • Price$425,000
  • Bathrooms0.00
  • Acres0.56
  • TypeCommercial Sale
  • Sub-TypeLand for Commercial Use
  • StatusActive Under Contract

Community Information

  • AddressW Locust
  • CityWOODSTOCK
  • CountySHENANDOAH-VA
  • StateVA
  • Zip Code22664

Interior

  • HeatingNone
  • CoolingNone

Exterior

  • Lot DescriptionLevel

School Information

  • ElementaryW.W. ROBINSON
  • MiddlePETER MUHLENBERG
  • HighCENTRAL

District

SHENANDOAH COUNTY PUBLIC SCHOOLS

Additional Information

  • Date ListedOctober 17th, 2025
  • Days on Market8
  • ZoningB-1

Listing Details

  • OfficePreslee Real Estate
  • Office Contact5402274416
Please provide a valid email address.

Price Change History for W Locust, WOODSTOCK, VA (MLS® #VASH2012806)

Date Details Price Change
Active Under Contract (from Active)

© 2020 BRIGHT, All Rights Reserved. Information deemed reliable but not guaranteed. The data relating to real estate for sale on this website appears in part through the BRIGHT Internet Data Exchange program, a voluntary cooperative exchange of property listing data between licensed real estate brokerage firms in which Coldwell Banker Residential Realty participates, and is provided by BRIGHT through a licensing agreement. Real estate listings held by brokerage firms other than Coldwell Banker Residential Realty are marked with the IDX logo and detailed information about each listing includes the name of the listing broker.The information provided by this website is for the personal, non-commercial use of consumers and may not be used for any purpose other than to identify prospective properties consumers may be interested in purchasing. Some properties which appear for sale on this website may no longer be available because they are under contract, have Closed or are no longer being offered for sale. Some real estate firms do not participate in IDX and their listings do not appear on this website. Some properties listed with participating firms do not appear on this website at the request of the seller.

Listing information last updated on November 2nd, 2025 at 7:30am CST.